Loading...

Kaštel Stari

KASTEL STARI*** Dvoetažni trosobni stan na drugom katu,98 m2 + 78 m2 !

450.000 €

KASTEL STARI*** Dvoetažni trosobni stan na drugom katu,98 m2 + 78 m2 ! Na prodaju stavljamo dvoetažni trosobni stan na drugom katu stambene zgrade u izgradnji u Kaštel Starom.

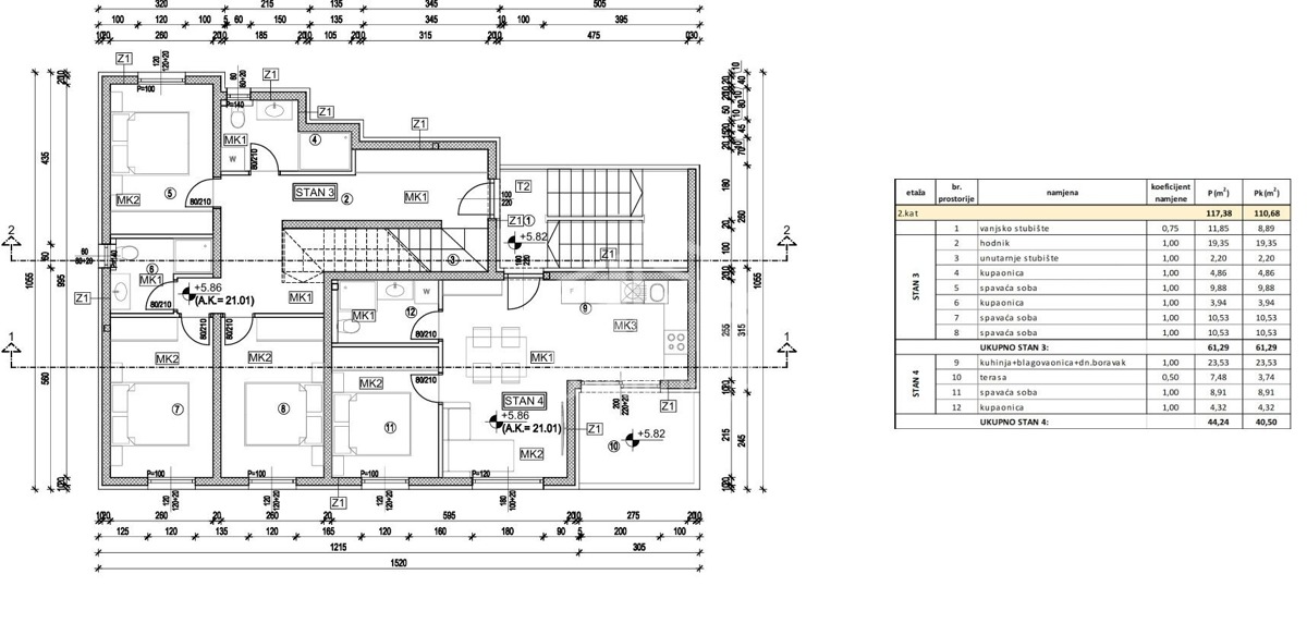
Donja etaža sastoji se od hodnika, tri spavaće sobe, te dvije kupaonice s wcom.

Gornju etažu čini prostrani dnevni boravak s kuhinjom i blagavaonom s izlazom na terasu.

Unutarnja površina stana iznosi 98,85 m2, a terase 78,12 m2.

Pripadaju mu dva vanjska parkirna mjesta

Objekt počinje s izgradnjom u listopadu 2025. godine, a završetak i useljenje su predviđeni 20 mjeseci od početka gradnje.

Prodaja se vrši po principu "ključ u ruke", što podrazumijeva ugradnju ulaznih blindo i sobnih vrata, podnih obloga, sanitarija u kupaonicama, klima uređaja, podnog grijanja, visokokvalitetne PVC stolarije itd.

Gradnja se odvija na izvrsnoj lokaciji uz staru cestu u blizini svih sadržaja potrebnih za svakodnevni život ( trgovine, osnovna škola, ambulanta, ljekarna, plaža, ugostiteljski objekti, mesnica, ribarnica... ). Udaljenost svega 10ak minuta hoda do prve plaže.

Za više informacija kontaktirajte agenta.

REC ID: 1134833

Značajke

  • 176 m2
  • 2 kupaonice
  • 3 sobe
  • 2 kata

Agencija

Logo agencije

Domus Trogir

Agent

Ivan Dujić

Mob: +385997949786

Agencija logo
+
=
REC Kuće Biz
Dogma LUXURY ESCAPE
Bonum Real Estate Croatia
Opatia Riviera Real Estate by SmartInvest
Terra Dalmatica Real Estate
IMMO - real estate agency Split
Kaiser Immobilien Opatija
Search for you