Loading...

Seget Donji

SEGET D**Građevinsko zemljište s projektom i dozvolom za vilu, 400 m2

300.000 €

SEGET D**Građevinsko zemljište s projektom i dozvolom za vilu, 400 m2 Na prodaju stavljamo građevinsko zemljište s projektom i građevinskom dozvolom za luksuznu vilu u Segetu Donjem.

Vila se sastoji od prizemlja, prvog i drugog kata.

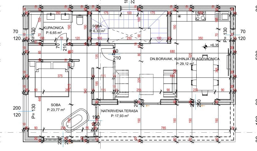
Prizemlje se sastoji od ostave, dnevnog boravka s kuhinjom i blagavaonom, kupaonice hodnika i stubišta. Zatvoreni dio prizemlja iznosi 85,50 m2.

Na prvom katu se nalaze stubište i hodnik, tri spavaće sobe, kao i tri kupaonice s wcom. Zatvoreni dio prvog kata iznosi 80,74 m2.

Na drugom katu nalaze se stubište, dnevni boravak s kuhinjom i blagavaonom, spavaća soba i kupaonica. Zatvoreni dio drugog kata iznosi 65,84 m2. Površina natkrivene terase iznosi 17,93 m2.

Za više informacija kontaktirajte agenta.



REC ID: 1134988

Značajke

  • 400 m2

Agencija

Logo agencije

Domus Trogir

Agent

Ivan Dujić

Mob: +385997949786

Agencija logo
+
=
REC Kuće Biz
Dogma LUXURY ESCAPE
Bonum Real Estate Croatia
Opatia Riviera Real Estate by SmartInvest
Terra Dalmatica Real Estate
IMMO - real estate agency Split
Kaiser Immobilien Opatija
Search for you