Loading...

Tar

ISTRA, Tar - trosoban stan u novogradnji na I. katu (sa liftom)

200.640 €

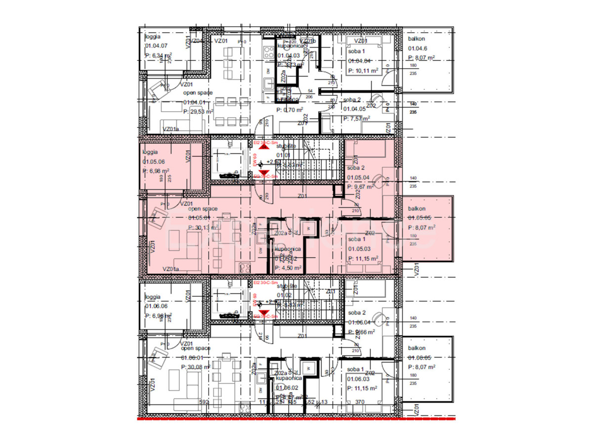
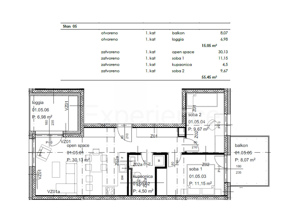
ISTRA, Tar - trosoban stan u novogradnji na I. katu (sa liftom) U Taru – cca. 2.500 m od mora, u iznimno mirnom ambijentu na prodaji je trosoban stan, površine 62,70 m². Stan se nalazi na prvom katu rezidencijalne zgrade. Sadrži: otvoren i svijetao prostor u kojem su smješteni dnevni boravak, kuhinja i blagovaonica sa izlazom na lođu (6,98 m²), dvije spavaće sobe od kojih jedna spavaća soba ima izlaz na balkon (8,07 m²) i kupaonicu.

U prizemlju zgrade nalazi se zajedničko spremište za bicikle. Zgrada je opremljena liftom.

Stanu također pripadaju dva parkirna mjesta ispred zgrade.

Tehničke karateristike:- termoizolacijska vuna 18 cm,- armirano - betonska konstrukcija otoprna na potrese,- lift,- električno podno grijanje u cijelom stanu i termostat u svakoj prostoriji,- klima uređaji u svim prostorijama,- PVC stolarija sa troslojnim staklima,- komarnici,- električne rolete,- protupožarna ulazna vrata,- poratafon sa videopozivom,- kvalitetna talijanska keramika,- sanitarije Villeroy i Boch.

Posebna pogodnost ovog stana je LOKACIJA, na pješačkoj udaljenosti nalaze se škola, vrtić, apoteka, nekoliko restorana, trgovina, supermarket i caffe bar.Planirani dovršetak gradnje je do lipnja 2026. godine.

Uz napomenu, prilikom kupnje nekretnine ne plaća se porez na promet nekretnina u iznosu 3% od ugovorene kupoprodajne cijene. U navedenoj cijeni uključen je PDV (25%).

REC ID: 1177799

Značajke

  • 62 m2
  • 1 kupaonica
  • 2 sobe
  • 1 kat

Agencija

Logo agencije

EXPERIENCE Real Estate

Agent

Patricija Simonetti

Mob: +385 91 300 4077

Agencija logo
+
=
REC Kuće Biz
Dogma LUXURY ESCAPE
Bonum Real Estate Croatia
Opatia Riviera Real Estate by SmartInvest
Terra Dalmatica Real Estate
IMMO - real estate agency Split
Kaiser Immobilien Opatija
Search for you