Loading...

Trogir

TROGIR - SALDUN*** Dvosobni penthouse stan s krovnom terasom !

335.061 €

TROGIR - SALDUN*** Dvosobni penthouse stan s krovnom terasom ! Na prodaju stavljamo dvosobni stan na drugom katu stambene zgrade u izgradnji u gradu Trogiru, predio Šaldun na otoku Čiovu.

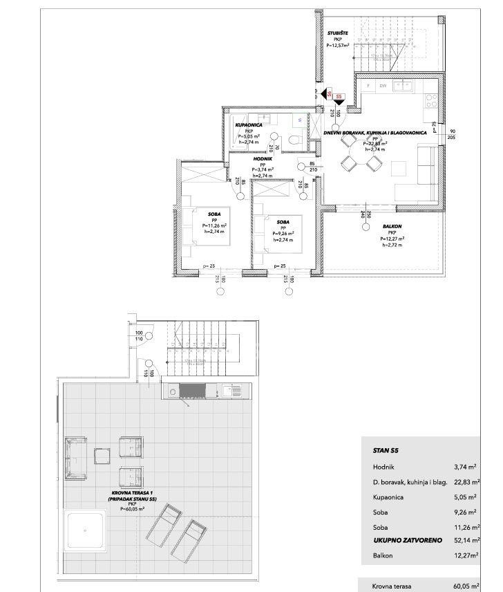
Stan se sastoji od hodnika, dvije spavaće sobe, kupaonice s wcom, dnevnog boravka s kuhinjom i blagavaonom, te natkrivene terase.

Unutarnja površina stana iznosi 59,72 m2, a natkrivene terase 12,27 m2.

Pripada mu jedno garažno parkirno mjesto, te prohodna krovna terasa od 60,05 m2.

Stan se prodaje po principu "ključ u ruke ", što podrazumijeva ugradnju ulaznih blindo i sobnih vrata, visokokvalitetne stolarije, klima uređaja, sanitarija, podnih obloga itd.

Za više informacija kontaktirajte agenta.

REC ID: 1201294

Značajke

  • 64 m2
  • 1 kupaonica
  • 2 sobe
  • 2 kata

Agencija

Logo agencije

Domus Trogir

Agent

Ivan Dujić

Mob: +385997949786

Agencija logo
+
=
REC Kuće Biz
Dogma LUXURY ESCAPE
Bonum Real Estate Croatia
Opatia Riviera Real Estate by SmartInvest
Terra Dalmatica Real Estate
IMMO - real estate agency Split
Kaiser Immobilien Opatija
Search for you