Loading...

Zaton

ZADAR, ZATON - Projekt 12 stanova! Građevinska dozvola! 2. red do mora!

2.460.375 €

ZADAR, ZATON - Projekt 12 stanova! Građevinska dozvola! 2. red do mora! ZADAR, ZATON - Projekt 12 stanova! Građevinska dozvola! 2. red do mora!

Prodaje se vrhunski projekt na najtraženijoj lokaciji u Zatonu, Punta Zaton.

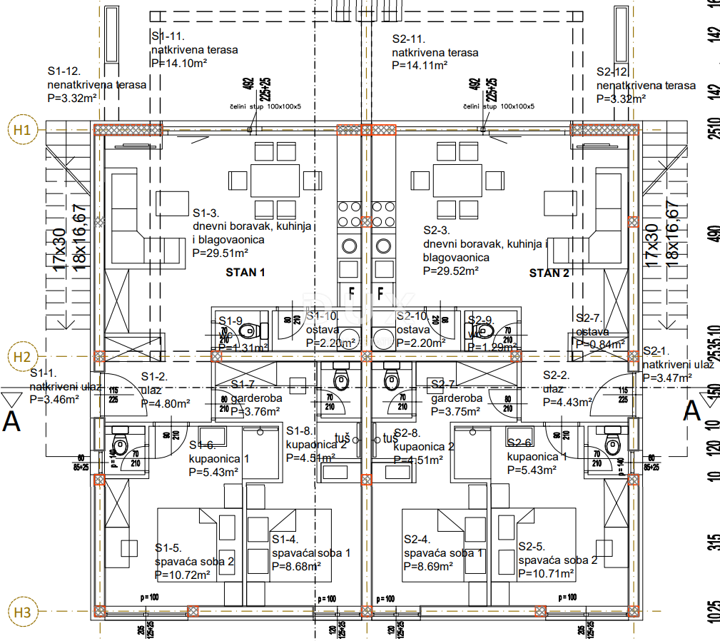
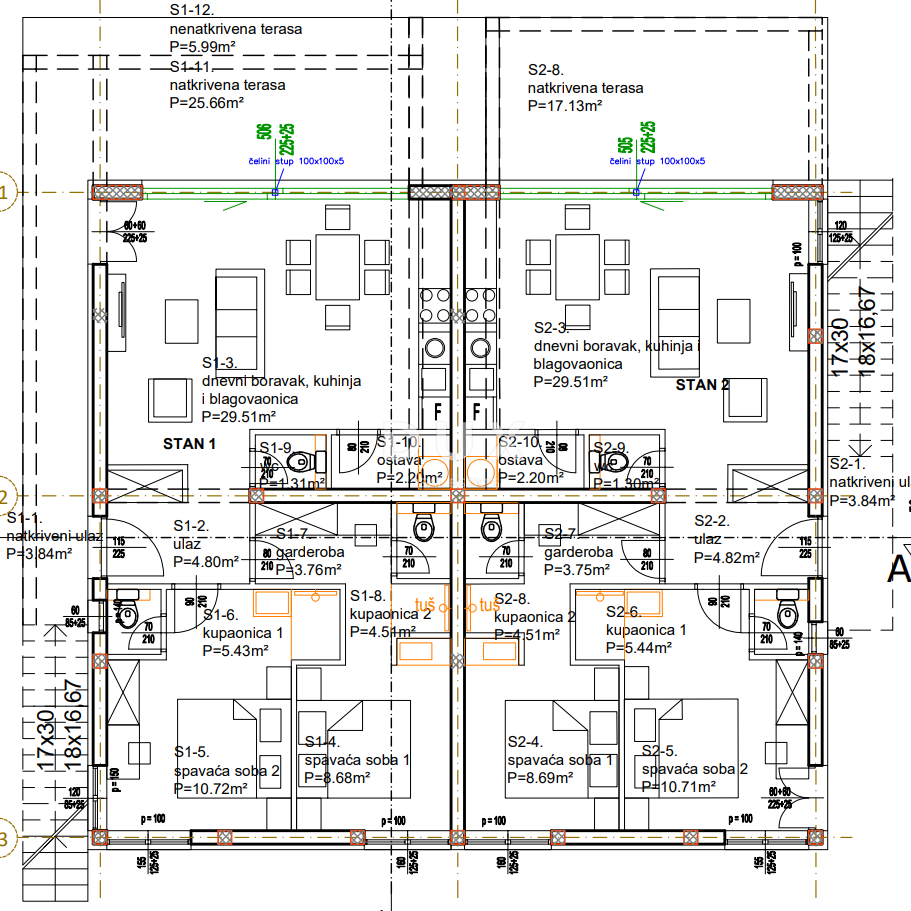
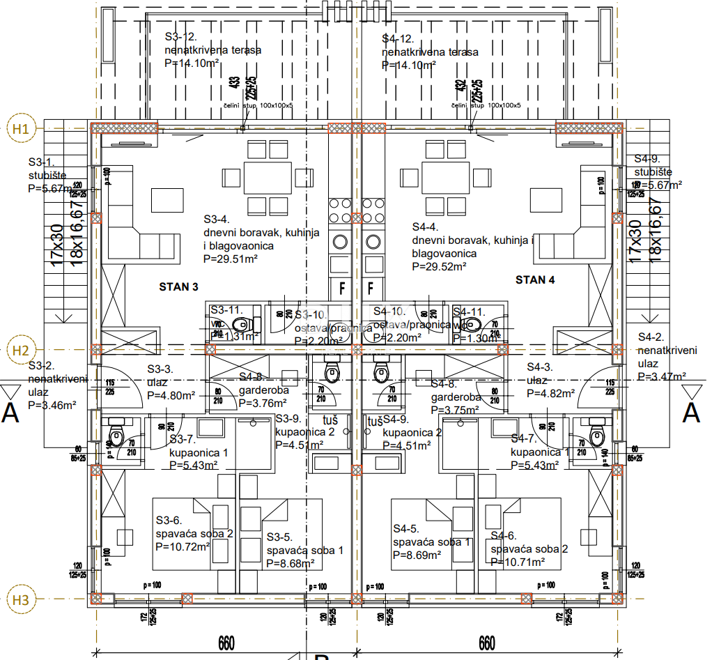
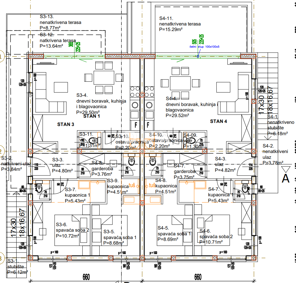
U pitanju su 3 zemljišta s 3 zgrade po 4 stana, sve ukupno 12 stanova koji se nalaze u drugom redu do mora te se već iz prizemlja pruža pogled na more dok su u prvom redu već izgrađene vile s bazenom.

Za sve 3 zgrade već je ishođena građevinska dozvola, što je ogromna prednost jer se odmah može početi s gradnjom bez dugog čekanja na građevinsku dozvolu.

Po projektu stanovi su dosta komotni, svaki ima 2 spavaće sobe, svaka sa svojom vlastitom kupaonicom.

Cijena po m2 iznosi 900€ + PDV.

Zaton je malo turističko mjesto idealno za istinski odmor i opuštanje od stresa svakodnevnice. Smješten je između dvaju povijesnih gradova – Nina (2km) i Zadra (12km).

Pješčane plaže u sjeni stoljetnih borova idealne su za obitelji s djecom. Želite li pronaći mir, kristalno bistro more, čisto podmorje, hlad borovih šuma, nezaboravne zalaske sunca, onda je Zaton idealno mjesto za Vaš odmor.


Poštovani klijenti, agencijska provizija naplaćuje se u skladu s Općim uvjetima poslovanja:
www.dux-nekretnine.hr/opci-uvjeti-poslovanja

REC ID: 1263375

Značajke

  • 2187 m2
  • 50 m od mora
  • Pogled na more

Agencija

Logo agencije

DUX Nekretnine

Agent

Tony Jerković

Mob: 051518174

Agencija logo
+
=
REC Kuće Biz
Dogma LUXURY ESCAPE
Bonum Real Estate Croatia
Opatia Riviera Real Estate by SmartInvest
Terra Dalmatica Real Estate
IMMO - real estate agency Split
Kaiser Immobilien Opatija
Search for you