Loading...

Turanj

Sveti Filip i Jakov-Turanj, moderan stan s vrtom na prodaju

610.000 €

Sveti Filip i Jakov-Turanj, moderan stan s vrtom na prodaju Prodaje se moderan stan u Turnju.

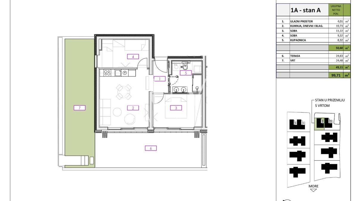
Sastoji se od dnevnog boravka s kuhinjom i blagovaonicom, dvije prostrane spavaće sobe, kupaonice, terase, vrta i hodnika, a stanu također pripada i vanjsko parkirno mjesto.

Stan se nalazi u sklopu novoizgrađenog urbanog naselja smještenog svega 50ak metara od plaže.
Svi materijali i oprema prve su klase poput troslojne aluminijske stolarije(CORTIZO COR70) za mediteran, sanitarije i keramika, kao i ventilirajuća keramička fasada, te smart home sustav.
Za sva dodatna pitanja i razgled nekretnine stojimo Vam na raspolaganju.

U slučaju posla posredovanja naše agencije postoji obveza plaćanja agencijske provizije.

Za ovu nekretninu je kontakt: Filip, +385 91 288 0089

REC ID: 1264783

Značajke

  • 111 m2
  • 111 m2
  • 1 kupaonica
  • 3 sobe

Agencija

Logo agencije

LUVA Real Estate

Agent

Filip Dobranić

Mob: +385 91 288 0089

Agencija logo
+
=
REC Kuće Biz
Dogma LUXURY ESCAPE
Bonum Real Estate Croatia
Opatia Riviera Real Estate by SmartInvest
Terra Dalmatica Real Estate
IMMO - real estate agency Split
Kaiser Immobilien Opatija
Search for you