Loading...

Tinjan

PRILIKA!!POPUST!!Kamena istarska kuća,Tinjan okolica

185.000 €

PRILIKA!!POPUST!!Kamena istarska kuća,Tinjan okolica Info 00385 98 592122 Roberta
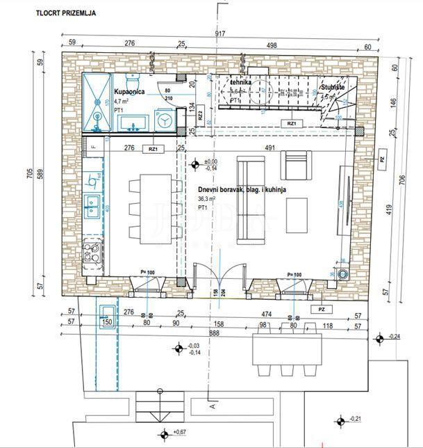
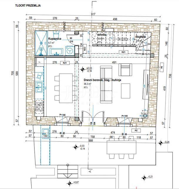
Samostojeća kamena kuća u mirnom naselju,okolica Tinjana.
Ishođena građevinska dozvola te prijavljen početak gradnje.
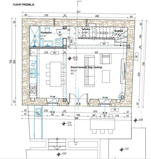
Izgrađena AB podna ploča, AB međukatna konstrukcija sa betonski stepenicama
te nova drvena krovna konstrukcija sa svima slojevima i završnim pokrovom od crijepa mediteran.
Izgrađen pregradni zid za wc u prizemlju.
Prema projektu izrađeni novi otvori (4) sa ugradnjom starih erti na vanjskom pročelju.
Na nekretnini postoji priključak vode i građevinski priključak struje.
Vlasništvo 1/1
Idealna investicija u turizam.

REC ID: 1265202

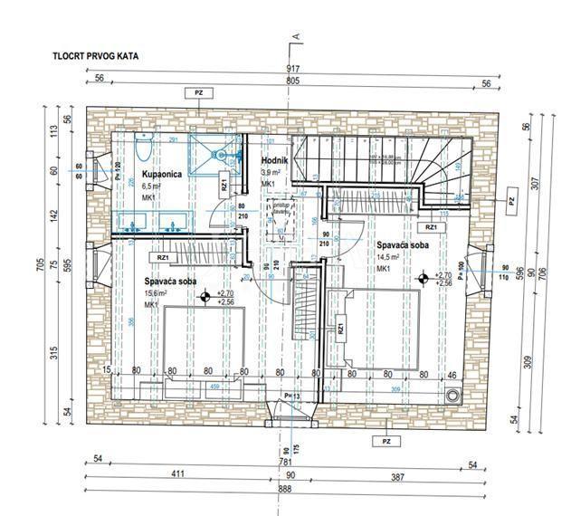
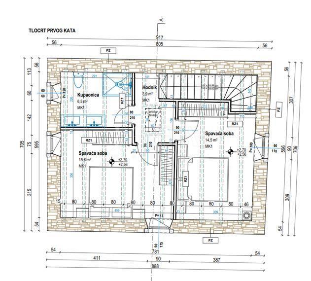
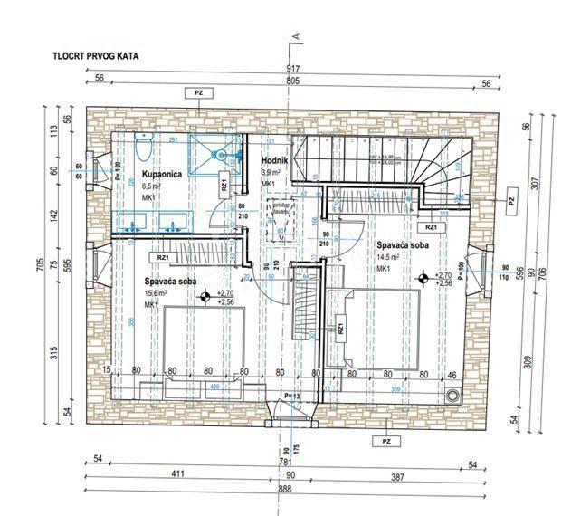
Značajke

  • 82 m2
  • 109 m2
  • 2 sobe

Agencija

Logo agencije

jo-da nekretnine d.o.o.

Agent

josip šikić

Mob: 0918904694

Agencija logo
+
=
REC Kuće Biz
Dogma LUXURY ESCAPE
Bonum Real Estate Croatia
Opatia Riviera Real Estate by SmartInvest
Terra Dalmatica Real Estate
IMMO - real estate agency Split
Kaiser Immobilien Opatija
Search for you