Loading...

Tinjan

ISTRA, TINJAN - Samostojeća kuća s karakterom u srcu Istre

198.000 €

ISTRA, TINJAN - Samostojeća kuća s karakterom u srcu Istre ISTRA, TINJAN - Samostojeća kuća s karakterom u srcu Istre

U mirnom i zelenom naselju općine Tinjan, smještena je ova arhitektonski isplanirana kuća s karakterom u izgradnji s ishodovanom građevinskom dozvolom i prijavljenim početkom gradnje. Riječ je o iznimnoj prilici za kupce koji žele završiti kuću po vlastitim željama, ali bez rizika i dugotrajnog procesa ishođenja dokumentacije i grubih građevinskih radova.

Ovdje kupujete kvalitetno izvedenu konstrukciju + potpuno osmišljen projekt koji omogućuje funkcionalan i moderan način života. Objekt je konstruktivno završen i spreman za instalacije i završne radove.

IZVEDENI GRAĐEVINSKI RADOVI (najzahtjevniji dio je gotov)
*Izlivena armiranobetonska (AB) podna ploča
*Izvedena AB međukatna konstrukcija
*Ugrađene betonske stepenice
*Nova drvena krovna konstrukcija
*Krov kompletno završen sa svim slojevima i završnim pokrovom od crijepa “Mediteran”
*Izgrađen pregradni zid za WC u prizemlju
*Prema projektu izvedeni novi vanjski otvori (4)
*Na pročelju ugrađene stare erte, koje objektu daju autentičan istarski izgled

Na parceli su već osigurani:
-aktivan priključak vode
-građevinski priključak električne energije

Ovo značajno smanjuje dodatne troškove i ubrzava nastavak gradnje.

ISPLANIRANI RASPORED PROSTORIJA
Raspored kuće od projektiran je s naglaskom na open space koncept, udobnost i prirodno svjetlo. (mogućnost promjene budućih vlasnika)

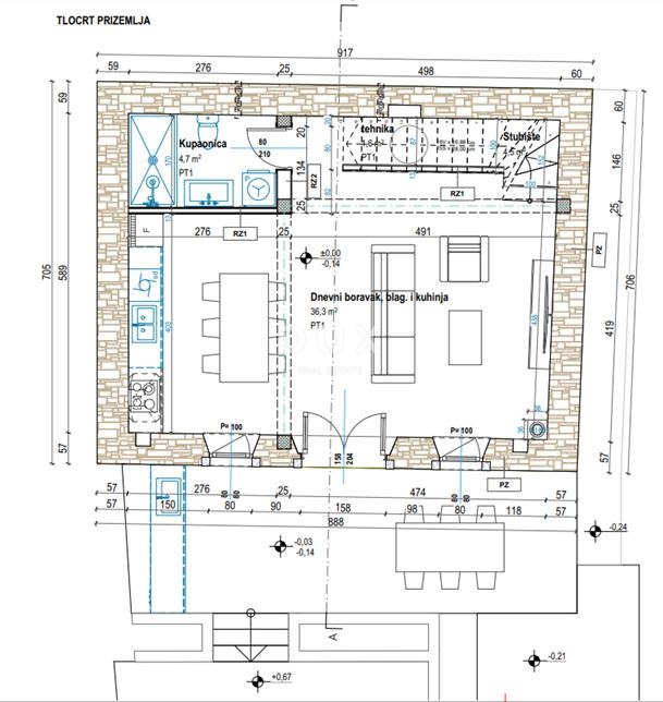
Prizemlje
-open space kuhinja s blagovaonicom i dnevnim boravkom ukupna površina 36,3 m²
-izravan izlaz na terasu i planiranu ljetnu kuhinju
-kupaonica: 4,7 m²
-unutarnje stubište koje vodi na kat

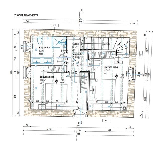
Prvi kat
-hodnik: 3,9 m²
-prostrana kupaonica: 6,5 m²
-spavaća soba 1: 15,6 m²
-spavaća soba 2: 14,5 m²

Garaža i vrt

Nekretnina je idealna kao obiteljska kuća za miran život u Istri, kuća za odmor s autentičnim istarskim šarmom ili investicija za turistički najam, izuzetno tražena u unutrašnjosti Istre
Zahvaljujući već gotovoj konstrukciji, novi vlasnik može prilagoditi završne materijale i stil teurediti okućnicu, terasu i ljetnu kuhinju

PREDNOSTI LOKACIJE
Smješten u zelenom srcu Istre, Tinjan nudi ono što je danas najvrjednije – mir, privatnost i prostor. Okružen netaknutom prirodom, poznat je po vrhunskoj gastronomiji, istarskom pršutu, domaćim proizvodima, agroturizmima i vinskim cestama koje pričaju priču pravog Mediterana.
Lokacija je istovremeno mirna i savršeno povezana – Pazin je nadohvat ruke, a Poreč i more udaljeni su tek kratkom vožnjom.
Istra je regija iznimne kvalitete života – sigurna, uređena i dugoročno atraktivna, s kontinuiranom potražnjom za nekretninama i stabilnom vrijednošću ulaganja.

Ako tražite čvrstu i sigurnu osnovu za dom iz snova ili pametnu investiciju, uz slobodu da sve završite prema vlastitom ukusu, nazovite nas odmah jer ovo je prilika koja ima energiju, potencijal i budućnost.

Poštovani klijenti, agencijska provizija naplaćuje se u skladu s Općim uvjetima poslovanja.
www.dux-nekretnine.hr/opci-uvjeti-poslovanja

REC ID: 1265785

Značajke

  • 82 m2
  • 109 m2
  • 2 kupaonice
  • 1 garaža
  • 5 soba

Agencija

Logo agencije

DUX Nekretnine

Agent

Tony Jerković

Mob: 051518174

Agencija logo
+
=
REC Kuće Biz
Dogma LUXURY ESCAPE
Bonum Real Estate Croatia
Opatia Riviera Real Estate by SmartInvest
Terra Dalmatica Real Estate
IMMO - real estate agency Split
Kaiser Immobilien Opatija
Search for you