Loading...

Trogir

Građevinsko zemljište s predanim projektom za vilu ! 616 m2

250.000 €

Građevinsko zemljište s predanim projektom za vilu ! 616 m2 Na prodaju stavljamo građevinsko zemljište u Segetu Donjem. Investitori su izradili arhitektonski projekt za luksuznu vilu, te predali zahtjev za građevinsku dozvolu.

Površina parcele: 616 m2

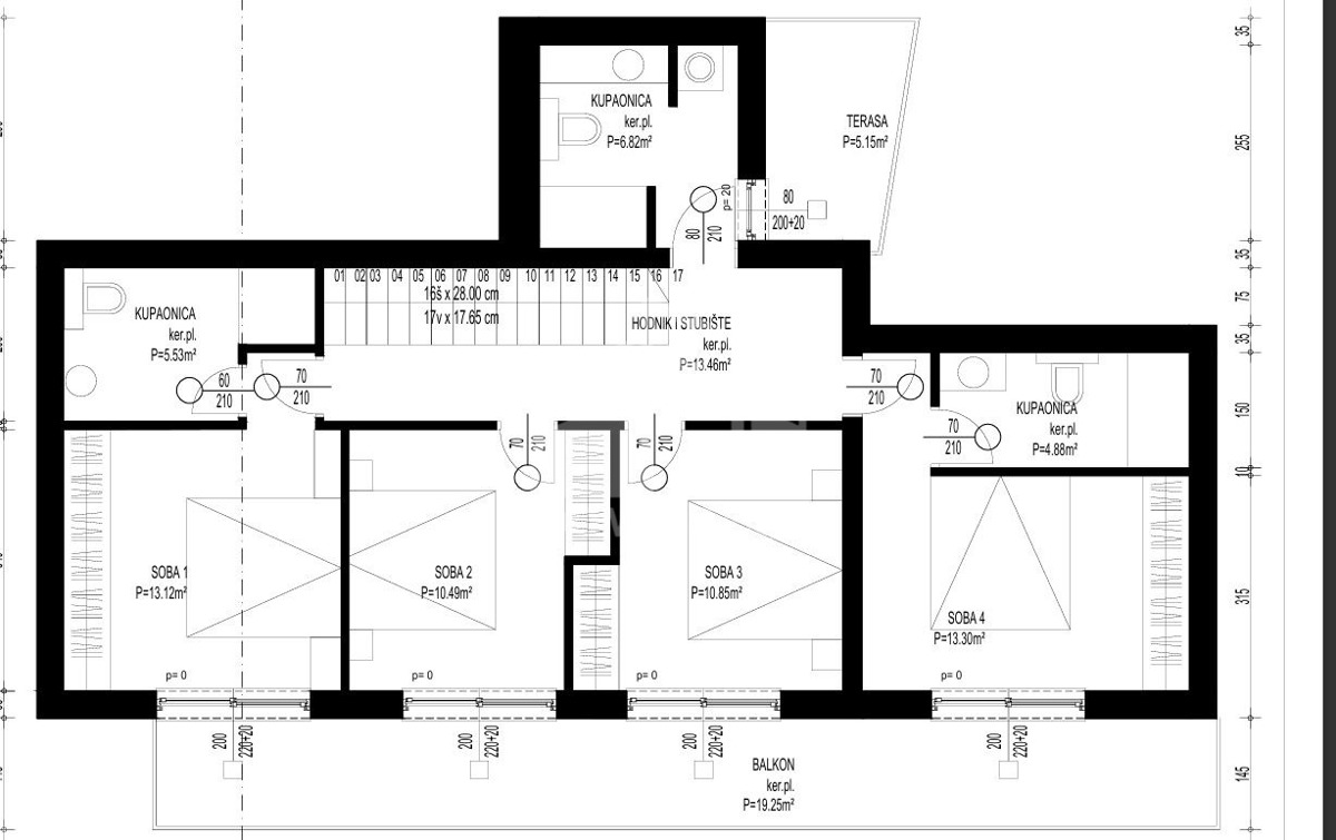
Ukupna površina objekta iznosi 248,87 m2.

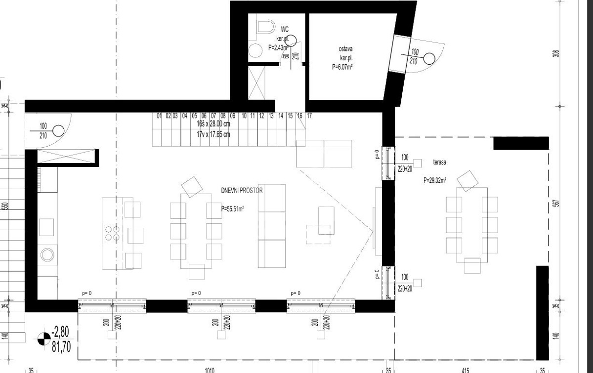
Stambena građevina je stambene namjene, s 1 stambenom jedinicom, katnosti P+2K s ravnim prohodnim krovom. Visina stambene građevine od najniže kote uređenog terena uz građevinu do gornje kote ploče ravnog krova iznosi 8.80 m. Sjeveroistočno od objekta predviđa se gradnja pomoćne građevine tlocrtne površine 6 m2- ljetne kuhinje, dok se jugoistočno od građevine predviđa gradnja pomoćnog objekta, tlocrtne površine 24 m2 - wellness, te potpuno ukopanog bazena tlocrtne površine 29 m2. Na građevnoj čestici nalazi se postojeća pomoćna građevina tlocrtne površine 22 m2 koja se rekonstruira u tehničku prostoriju.

Građevina se sastoji od 1 stambene jedinice- četverosobnog stana. Na razini prizemlja nalazi se garaža i ostava, na razini 1. kata nalazi se dnevni prostor, wc i ostava, dok se na 2. katu nalaze 4 spavaće sobe i 3 kupaonice.


Za detaljnije informacije kontaktirajte agenta.

REC ID: 1266995

Značajke

  • 616 m2

Agencija

Logo agencije

Domus Trogir

Agent

Ivan Dujić

Mob: +385997949786

Agencija logo
+
=
REC Kuće Biz
Dogma LUXURY ESCAPE
Bonum Real Estate Croatia
Opatia Riviera Real Estate by SmartInvest
Terra Dalmatica Real Estate
IMMO - real estate agency Split
Kaiser Immobilien Opatija
Search for you