Zadar
PENTHOUSE OZNAKE S5-CRVENE KUĆE
U vrhunsko novoizgrađenoj zgradi sa 6 stanova u naselju Crvene kuće prodaje se Penthouse oznake S5 smješten na drugom katu sa vlastitim krovnom terasom.
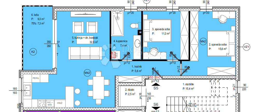
Površina stana je 106,64 m2 korisne vrijednosti.
Stan se sastoji od dvije spavaće sobe, kuhinje, blagovaone, dnevnog boravka koji ima izlaz na balkon,kupaone te vlastite krovne terase od 83,91 m2. U zgradi postoji lift što olakšava prijenos stvari i svakodnevno kretanje.
Jako je prostran i prozračan, velike staklene stijene omogućuju obilje prirodnog svjetla cijeli dan.
Moderna i kvalitetna gradnja uključuje podno grijanje na struju u svim prostorijama osim u dnevnim sobama. Klima uređaj u dnevnom boravku. Kvalitetna PVC stolarija sa troslojnim staklo i komarnicima. Odlična zvučna i toplinska izolacija. Prozupožarna i protuprovalna vrata.
U kupaoni keramičke pločice postavljene su do stropa, a u spavaćim sobama je postavljen parket.
Vrlo poželjna lokacija sa svim sadržajima potrebnim za život se nalaze u neposrednoj blizini naselja: škola, vrtić, trgovački centar Super Nova, trgovine itd.
Stanu pripadaju dva parkirna mjesta PM7 i PM8, a parking je opremljen punionicom za električne automobile. Krovna terasa nudi brojne mogućnosti uređenja po vlastitom izboru za odmor, druženje i privatnost te pogled na cijelo naselje i more.
Planiran završetak radova je ljeto 2026 g.
REC ID: 1267960