Loading...

Sabunike

Investicijska prilika-građevinska dozvola 50m od pješčane plaže

2.029.000 €

Investicijska prilika-građevinska dozvola 50m od pješčane plaže Na prodaju atraktivno građevinsko zemljište ukupne površine 2984m2,
smješteno u Sabunikama, Općina Privlaka,svega 50 m odpoznate pješčane plaže.

Parcela je podjeljena na tri čestice,a za jednu od njih je ishodovana pravomoćna građevinska dozvola
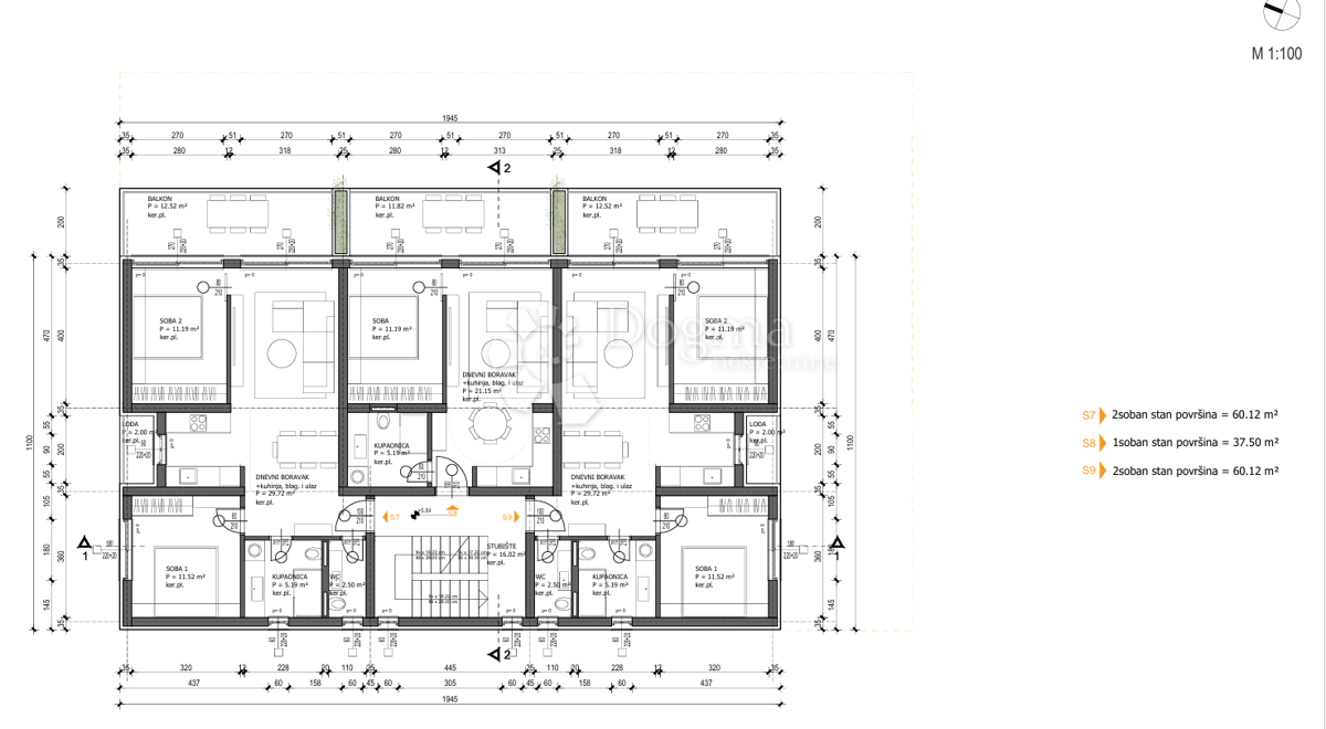
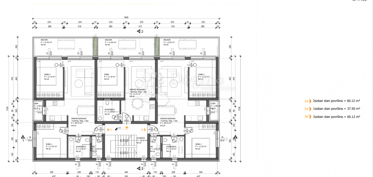
za izgradnju stambene zgrade (Pr+2) s ukupno 9 stambenih jedinica,2B skupine, uz bazen.
Planirana građevinska bruto površina objekta iznosi 629,85m2.

Zgrada je etažne visine prizemlja i 2 kata,visine 8,99m stropne konstrukcije ravnog krova.
U prizemlju,na 1.katu i na 2.katu se nalaze po 3 stana .
Na svakoj etaži se nalaze po 2 2sobna i jedan 1soban stan u sredini objekta.

Dvosobni stanovi se sastoje od dvije spavaće sobe,kupaonice i wc-a,spojenog dnevnog prostora s kuhinjom
te velikim balkonom na sjeveru i manjom lođom na istočnoj odnosno zapadnoj strani.
Jednosobni stanovi se sastoje od jedne spavaće sobe,kupaonice,spojenog dnevnog prostora s kuhinjom
te velikim balkonom na sjeveru.

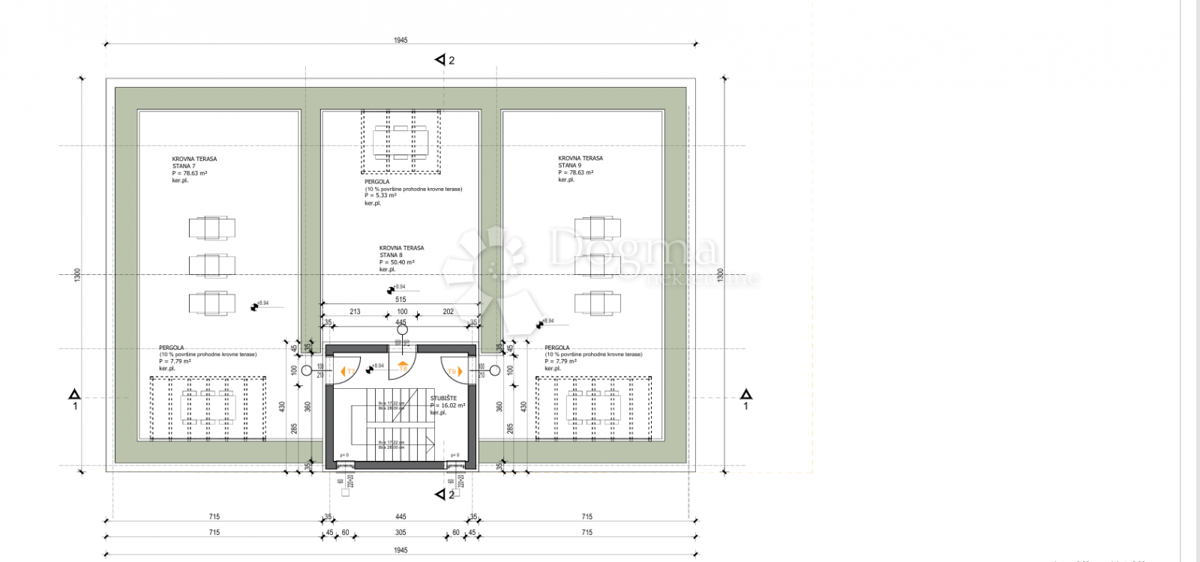
Krovna terasa je podjeljena na 3 terase koje pripadaju stanovima 2.kata.

Sva potrebna komunalna infrastruktura nalazi se neposredno uz teren (struja,voda,pristupna cesta),
što omogućuje brz početak gradnje bez dodatnih administrativnih zastoja.

Parcela podjeljena na tri čestice pruža mogučnost fazne realizacije.
Lokacija je jedna od najtraženijih u okolici Nina i Zadra.

Idealna prilika za investitore koji žele brzo pokrenuti projekt
najednoj od najatraktivnijih lokacija zadarskog područja.

Za više informacija:

Marin Peroš
099 677 5850

REC ID: 1268576

Značajke

  • 2984 m2
  • 50 m od mora
  • Pogled na more
  • Prvi red do mora

Agencija

Logo agencije

Dogma nekretnine d.o.o.

Agent

Marin Peroš

Mob: 099/677-5850

Agencija logo
+
=
REC Kuće Biz
Dogma LUXURY ESCAPE
Bonum Real Estate Croatia
Opatia Riviera Real Estate by SmartInvest
Terra Dalmatica Real Estate
IMMO - real estate agency Split
Kaiser Immobilien Opatija
Search for you