Loading...

Zemunik Gornji

ZADAR, ZEMUNIK G. – Građevinsko zemljište s projektom niskoenergetske kuće

93.500 €

ZADAR, ZEMUNIK G. – Građevinsko zemljište s projektom niskoenergetske kuće ZADAR, ZEMUNIK G. – Građevinsko zemljište s projektom niskoenergetske kuće

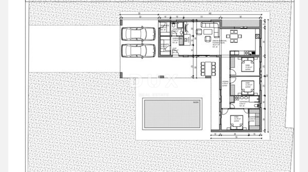
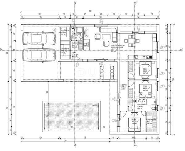
Prodaje se građevinsko zemljište površine 978 m² u naselju Zemunik Gornji, mirnom i sve traženijem dijelu Zadar. Parcela je pravilnog oblika i odmah uz nju je ucrtan pristupni put, što omogućuje jednostavan ulaz i izlaz te praktičnu organizaciju gradnje.

Na zemljištu je uključen kompletan projekt za montažnu niskoenergetsku prizemnicu površine 155 m². Zahtjev za građevinskom dozvolom uredno je predan u rujnu 2025. godine, što znači da je proces gradnje moguće odmah započeti po dobivanju dozvole. Zemljište je spremno za izgradnju i predstavlja odličnu priliku za kupce koji žele investiciju ili vlastiti dom u mirnom okruženju, a opet u blizini svih sadržaja.

Zemunik Gornji nudi mir i privatnost, a istovremeno brzu povezanost s centrom Zadar, zračnom lukom i glavnim prometnicama, čineći ovu lokaciju idealnom za obiteljsku kuću ili dugoročno ulaganje.

Poštovani klijenti, agencijska provizija se naplaćuje u skladu s Općim uvjetima poslovanja.
https://www.dux-nekretnine.hr/opci-uvjeti-poslovanja

REC ID: 1269641

Značajke

  • 978 m2

Agencija

Logo agencije

DUX Nekretnine

Agent

Tony Jerković

Mob: 051518174

Agencija logo
+
=
REC Kuće Biz
Dogma LUXURY ESCAPE
Bonum Real Estate Croatia
Opatia Riviera Real Estate by SmartInvest
Terra Dalmatica Real Estate
IMMO - real estate agency Split
Kaiser Immobilien Opatija
Search for you