Loading...

Žbandaj

Kuća kategorizirana za iznajmljivanje, Žbandaj, Poreč

360.000 €

Kuća kategorizirana za iznajmljivanje, Žbandaj, Poreč Renovirana kamena kuća s pogledom na more u daljini – Žbandaj, Poreč – 162 m²

Prodaje se renovirana kuća u nizu u mjestu Žbandaj, u blizini grada Poreča, jedne od najpoznatijih turističkih destinacija u Istri. Ova autentična istarska kuća prostire se na 162 m² stambene površine i raspoređena je na tri etaže, a kombinira rustikalni šarm i moderan luksuz.

Kuća je kategorizirana za turistički najam, te se prodaje potpuno namještena i opremljena kvalitetnim namještajem, što je čini odličnom investicijom za turizam ili luksuzan obiteljski život.

Raspored prostorija

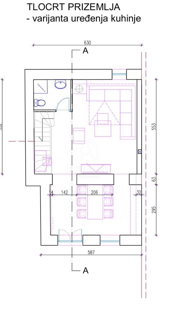
Prizemlje

U prizemlju se nalazi:
• rustikalno uređena kuhinja s blagovaonicom,
• prostrani dnevni boravak,
• kupaonica.

Prostor je uređen u istarskom stilu, s naglaskom na toplinu doma i ugodan ambijent.

Prva etaža

Elegantnim stubištem dolazi se na prvi kat gdje se nalaze:
• dvije spavaće sobe,
• dvije kupaonice (svaka soba ima vlastitu kupaonicu).

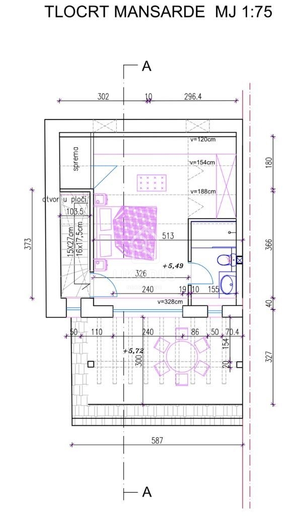
Druga etaža – zona opuštanja

Treći kat namijenjen opuštanju, a sastoji se od:
• prostrane spavaće sobe,
• kupaonice sa saunom,
• djelomično natkrivene terase s jacuzzijem.

S terase se pruža pogled na more u daljini, što ovu nekretninu čini posebno atraktivnom.

Vanjski prostor

Ispred kuće nalazi se natkrivena terasa s ljetnom kuhinjom, idealna za obiteljska druženja, obroke na otvorenom i opuštanje tijekom toplih ljetnih večeri.
Preko puta kuće nalazi se prostor koji se koristi kao parking.

Oprema i dodatne značajke:
• kuća potpuno namještena,
• kategorizirana za turistički najam,
• klima uređaji za grijanje i hlađenje u cijeloj kući,
• jacuzzi,
• sauna,
• ljetna kuhinja,
• pogled na more.

Atraktivna lokacija

Žbandaj se nalazi u blizini Poreča, grada poznatog po:
• prekrasnim plažama,
• bogatoj turističkoj ponudi,
• restoranima i kulturnim sadržajima.

Ova lokacija omogućuje miran život u Istri, a istovremeno brz pristup moru i turističkim sadržajima.
Ova nekretnina predstavlja rijetku priliku za kupnju renovirane istarske kuće u blizini Poreča, idealne za luksuzni odmor ili investiciju u turistički najam.

U prikazanu cijenu uključena je agencijska provizija i sastav ugovora o kupoprodaji. Posredovanje je besplatno za kupca!

Kontakt:
Milena Brlek, univ.spec.iur
Agentica i stečajna upraviteljica

Mob: +385 99 703 1844
Mail: milena@likvidus.hr, https://likvidus.hr/
Likvidus nekretnine d.o.o., Banjole, Kamik 24



 
 
 
 
 

REC ID: 1269956

Značajke

  • 162 m2
  • 100 m2
  • 4 kupaonice
  • 4 sobe

Agencija

Logo agencije

Likvidus nekretnine

Agent

Milena Brlek

Mob: +385 99 7031 844

Agencija logo
+
=
REC Kuće Biz
Dogma LUXURY ESCAPE
Bonum Real Estate Croatia
Opatia Riviera Real Estate by SmartInvest
Terra Dalmatica Real Estate
IMMO - real estate agency Split
Kaiser Immobilien Opatija
Search for you