Loading...

Draga Bašćanska

BAŠKA okolica - Dvosobni apartman s dva parkina mjesta, novogradnja

285.000 €

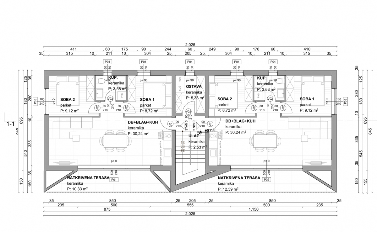
BAŠKA okolica - Dvosobni apartman s dva parkina mjesta, novogradnja Apartman 4 u novogradnji u okolici Baške predstavlja funkcionalnu i ugodnu nekretninu idealnu za odmor, stanovanje ili turistički najam. Smješten je na prvom katu moderne stambene zgrade te ima ukupnu površinu od 64 m2.

Središnji dio apartmana čini otvoreni i prozračni prostor površine čak 30 m2 koji objedinjuje kuhinju, blagovaonicu i dnevni boravak. Ovakav koncept prostora omogućuje ugodnu svakodnevnu komunikaciju i obilje prirodnog svjetla. Iz dnevnog boravka omogućen je izlaz na terasu površine 12,39 m2 s koje se pruža pogled na prirodno okruženje i miran ambijent.

Apartman raspolaže s dvije komforne spavaće sobe te jednom kupaonicom, što ga čini pogodnim za obiteljski boravak, odmor ili turistički najam.

Na uređenoj okućnici zgrade nalaze se dva parkirna mjesta koja pripadaju apartmanu, dok je dodatna praktičnost osigurana spremištem smještenim unutar objekta.

Nekretninu karakterizira funkcionalan raspored, mirna lokacija te ugodno prirodno okruženje koje osigurava kvalitetu boravka i privatnost.

Prodaja se odvija po sistemu ključ u ruke, a dokumentacija je uredna. Budućim kupcima na upit su dostupne detaljne informacije o predviđenoj opremi koja uključuje PVC stolariju s električnim roletama, protuprovalna ulazna vrata, kvalitetnu keramiku dimenzija 60x60 cm, klima uređaje u svakoj prostoriji te visokokvalitetni laminat u spavaćim sobama.

Nekretnina se nalazi u sustavu PDV-a, kupac ne plaća porez na promet nekretnina, a PDV je uključen u kupoprodajnu cijenu.

Poštovani klijenti, agencijska provizija naplaćuje se u skladu s Općim uvjetima poslovanja:
www.myadriatic.hr/opci-uvjeti-poslovanja

REC ID: 1270304

Značajke

  • 64 m2
  • 1 kupaonica
  • 3 sobe
  • 1 kat
  • 2500 m od mora

Agencija

Logo agencije

My Adriatic Nekretnine

Agent

Igor Popović

Mob: +385 91 500 8728

Agencija logo
+
=
REC Kuće Biz
Dogma LUXURY ESCAPE
Bonum Real Estate Croatia
Opatia Riviera Real Estate by SmartInvest
Terra Dalmatica Real Estate
IMMO - real estate agency Split
Kaiser Immobilien Opatija
Search for you