Loading...

Lašćina

D13 - Novogradnja Kvatrić – Maksimir | Prestiž

1.080.384 €

D13 - Novogradnja Kvatrić – Maksimir | Prestiž *** ZA SVE DIREKTNE INFORMACIJE 0914070777 ***

Krenula je prodaja jedne od najekskluzivnijih novogradnji u širem centru Zagreba, na području Kvatrića – Maksimira, projekta koji već sada privlači veliku pozornost tržišta luksuznih nekretnina. Posebno smo ponosni što imamo priliku sudjelovati u prodaji ovako prestižnog projekta za koji vjerujemo da će postati novi simbol luksuznog stanovanja u ovom dijelu grada te donijeti potpuno novu dimenziju ponude na tržištu.

Riječ je o vrhunskoj novogradnji koja spaja suvremenu arhitekturu i tradiciju zagrebačke stambene gradnje, smještenoj u širem gradskom centru. Projekt je zamišljen kao elegantna interpolacija u zagrebački blok te donosi visoke standarde gradnje, funkcionalnost i kvalitetu života kakva se rijetko nalazi na ovoj lokaciji.

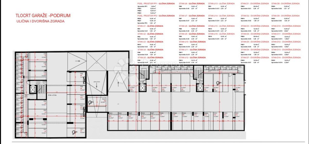
U sklopu projekta u ponudi je 30 stanova različitih kvadratura, od 40 m² do 158m², raspoređenih u dva objekta – uličnoj i dvorišnoj zgradi.

U ponudi su:

dvosobni stanovi

trosobni stanovi

četverosobni stanovi

Ulična zgrada ima etažnost prizemlje + 5 katova, dok dvorišna zgrada ima prizemlje + 3 kata. Na etaži -1 nalaze se garažna parkirna mjesta i spremišta.

Stanovi u uličnoj zgradi orijentirani su prema jugu i sjeveru, dok su mnogi stanovi u dvorišnoj zgradi trostrano orijentirani, što omogućuje iznimnu osvijetljenost prostora. Veliki prozori, lođe, balkoni i terase osiguravaju obilje prirodnog svjetla, dok svaka stambena jedinica ima vlastiti vanjski prostor. U prizemlju su posebno atraktivni hortikulturno uređeni vrtovi koji dodatno naglašavaju osjećaj privatnosti i luksuza.

Zgrade su projektirane s armiranobetonskom konstrukcijom, a fasada je izvedena s kompozitnim sustavom toplinske izolacije i kvalitetnom završnom oblogom. Otvori na pročeljima imaju IZO stakla s roletama ili harmo griljama, dok metalne ograde balkona i terasa daju dojam profinjene transparentnosti i prozračnosti.

Interijeri su opremljeni visokokvalitetnim troslojnim hrastovim parketom, dok su kupaonice i sanitarni prostori uređeni prvoklasnom keramičkom sanitarnom opremom i porculanskim pločicama. Vanjski prostori obloženi su kamenim pločama.

Svaki stan ima etažno radijatorsko grijanje i pripremu tople vode putem plinskog bojlera, dok je hlađenje riješeno individualnim klima sustavima s unutarnjim i vanjskim jedinicama. Dizalo omogućuje direktnu i brzu povezanost garaže i stambenih jedinica.

Projekt je planiran u A energetskom razredu, a završetak radova očekuje se 2028. godine.

Uz kupnju stana obavezna je kupnja garažnog parkirnog mjesta (GPM) sa spremištem, smještenih na etaži -1.

Cijena GPM-a sa spremištem: 55.000 €

Vjerujemo da je ovo projekt koji će postati jedna od najprestižnijih adresa na području Kvatrića i Maksimira, idealan za sve koji žele živjeti u samom centru grada, ali u prostoru koji nudi posebnost, kvalitetu i luksuz.

Za sve dodatne informacije i prezentaciju projekta slobodno nam se javite.
Ako tražite stanovanje u samom srcu grada, u zgradi koja će biti simbol suvremenog luksuza, ovo je prilika koju vrijedi upoznati.

Drago Palić: 0914070777
drago.palic@dogma-nekretnine.com

REC ID: 1270457

Značajke

  • 144 m2
  • 2 kupaonice
  • 1 garaža
  • 4 sobe
  • 3 kata

Agencija

Logo agencije

Dogma nekretnine d.o.o.

Agent

Drago Palić

Mob: 091/407-0777

Agencija logo
+
=
REC Kuće Biz
Dogma LUXURY ESCAPE
Bonum Real Estate Croatia
Opatia Riviera Real Estate by SmartInvest
Terra Dalmatica Real Estate
IMMO - real estate agency Split
Kaiser Immobilien Opatija
Search for you