Loading...

Povljana

Apartmani u novogradnji na mirnoj lokaciji - Otok Pag

154.132 €

Apartmani u novogradnji na mirnoj lokaciji - Otok Pag Otok Pag - na prodaju moderni apartmani u novogradnji u Povljani, na mirnoj lokaciji, na oko 800 m od mora.

Zgrada je visokokvalitetne gradnje i opreme, te ima i lift.

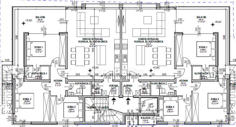
APARTMAN S2 (prizemlje) - površine 49,79 m²
Cijena: 154.132 €

Sastoji se od hodnika, kupaonice, dnevnog boravka sa kuhinjom i blagovaonicom, jedne spavaće sobe, lođe i spremišta. U kupaonici je postavljeno podno grijanje, dok je klimatizacija WindFree.

Apartmanu pripada jedno vanjsko parkirno mjesto, a postoji mogućnost kupnje garažnog parkirnog mjesta.


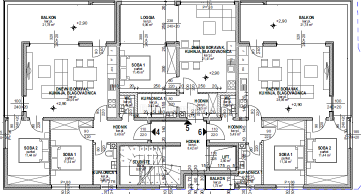
APARTMAN S6 (1. kat) - površine 85,28 m²
Cijena: 208 560 €

Sastoji se od hodnika, dnevnog boravka s kuhinjom i blagovaonicom, kupaonice, dvije spavaće sobe, WC-a, dva balkona. Pripada mu i spremište površine 3,74 m².
Ima centralno podno grijanje (u cijelom apartmanu) i klimatizaciju tipa WindFree.

Apartmanu pripada jedno vanjsko parkirno mjesto, a postoji mogućnost kupnje garažnog parkirnog mjesta.


PENTHAUSE APARTMAN S8 (2. kat) - površine 215,95 m²
Cijena: 478 500 €

Sastoji se od dva hodnika, dnevnog boravka s kuhinjom i blagovaonicom, dvije kupaonice, tri spavaće sobe, WC-a, stubišta i dva balkona. Pripada mu i spremište površine 3,62 m². Ima centralno podno grijanje (u cijelom apartmanu) i klimatizaciju tipa WindFree.

Uz apartman dolazi i krovna terasa s bazenom.
Krovna terasa se sastoji od otkrivene i natkrivene terase, bazena površine 10,38 m², strojarnice, WC-a i kuhinje.

Apartmanu pripada jedno vanjsko parkirno mjesto, a postoji mogućnost kupnje garažnog parkirnog mjesta.


Provizija agencije za kupca iznosi 3% + PDV i plaća se u slučaju kupovine nekretnine kod zaključenja kupoprodajnog Ugovora.

REC ID: 1270837

Značajke

  • 49 m2
  • 1 kupaonica
  • 2 sobe
  • 800 m od mora

Agencija

Logo agencije

EURO IMMOBILIEN

Agent

Euro Immobilien d.o.o.

Mob: 00385 (0)99 444 0660

Agencija logo
+
=
REC Kuće Biz
Dogma LUXURY ESCAPE
Bonum Real Estate Croatia
Opatia Riviera Real Estate by SmartInvest
Terra Dalmatica Real Estate
IMMO - real estate agency Split
Kaiser Immobilien Opatija
Search for you