Loading...

Vodice

VODICE, novo, luksuzna atraktivna vila, bazen, sauna, garaža, Roh-Bau faza

899.999 €

VODICE, novo, luksuzna atraktivna vila, bazen, sauna, garaža, Roh-Bau faza VODICE - Prodaje se moderna dizajnerska vila u Vodicama, smještena na mirnoj i odličnoj lokaciji, udaljena 1100 m od plaže Vrulje te 1000 m od samog centra grada.

Ova impozantna vila nudi sve što je potrebno za luksuzan i udoban život – vrhunski dizajn, visoku kvalitetu gradnje i pažljivo osmišljen raspored prostorija. Svojom arhitekturom i prostranošću ističe se kao savršen dom za one koji traže mir i privatnost, a istovremeno žele biti blizu svih ključnih sadržaja.

Luksuzna nekretnina se proteže na tri etaže (podrum + prizemlje + kat) s ukupnom korisnom površinom od 589,89 m2 + 140,36 m² terasa, a smještena je na prostranom zemljištu od 1499 m². Vila je trenutno u izgradnji i prema projektu će biti okružena lijepo uređenim okolišem. U sklopu ograđenog i popločanog dvorišta biti će i veliki grijani bazen od 53,19 m², te održivi vrt s automatskim navodnjavanjem. Vila će imati pogled na more.

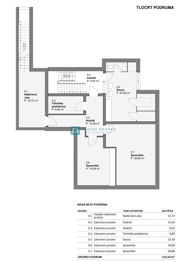
RASPORED PROSTORIJA

PODRUM: natkriveni ulaz, tehnička soba, hodnik, sauna, vinoteka, dva spremišta
PRIZEMLJE: garaža, 6 parkirnih mjesta, praonica, WC, dvije spavaće sobe s kupaonicama, garderoba, kuhinja s blagovaonicom i dnevnim boravkom koji ima izlaz na tri terase, prostrani grijani bazen (53,19 m²), sunčalište i ljetnu kuhinju
KAT: tri spavaće sobe, dvije kupaonice, terase, teretana, kuhinja s blagovaonicom, dnevni boravak s izlazom na terasu

Cijena u Roh-Bau fazi iznosi 899.999 €.
Postoji mogućnost kupovine potpuno dovršene vile prema modelu "ključ u ruke" (bez namještaja) - Cijena iznosi 1.999.999 €.

Za više informacija ili razgledavanje, slobodno nas kontaktirajte!

REC ID: 1271093

Značajke

  • 589 m2
  • 1100 m2
  • 6 kupaonica
  • 1 garaža
  • 9 soba
  • 1100 m od mora
  • Pogled na more

Agencija

Logo agencije

FIDIUS BROKER 2

Agent

Ljubomir Skočić

Mob: 0913375522

Agencija logo
+
=
REC Kuće Biz
Dogma LUXURY ESCAPE
Bonum Real Estate Croatia
Opatia Riviera Real Estate by SmartInvest
Terra Dalmatica Real Estate
IMMO - real estate agency Split
Kaiser Immobilien Opatija
Search for you