Loading...

Štrigova

Novogradnja – Kuće u nizu sa zasebnim dvorištima + natkriveni parking

270.700 €

Novogradnja – Kuće u nizu sa zasebnim dvorištima + natkriveni parking Novogradnja – 3 kuće u nizu sa zasebnim dvorištima | Štrigova | Useljenje 07/2027

Na prodaju su tri moderne kuće u nizu u mirnom dijelu Štrigove, svaka s vlastitim dvorištem i natkrivenim parkirnim mjestom. Kuće su projektirane za ugodan obiteljski život, s funkcionalnim rasporedom prostorija i kvalitetnim materijalima gradnje. Prodaju se po principu "ključ u ruke", s potpuno uređenim podovima, keramikom i kupaonicom.

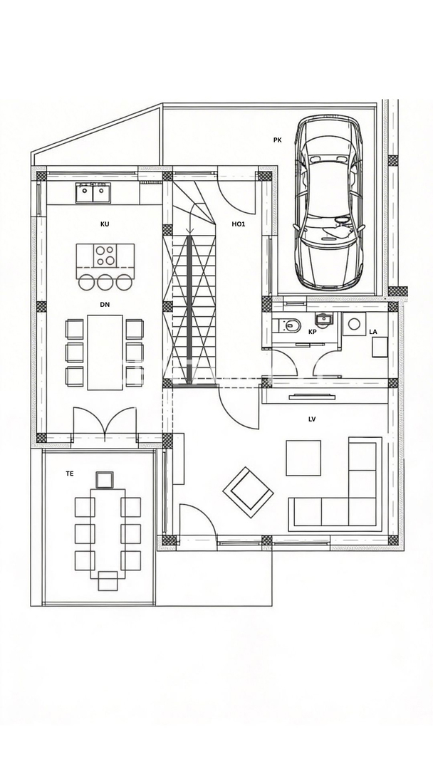
Površina i raspored

Prizemlje

- Dnevni boravak – 20,81 m2


- Kuhinja i blagovaonica – 21,97 m2


- WC – 1,36 m2


- Gospodarstvo / spremište – 2,04 m2


- Hodnik – 10,16 m2 + 1,64 m2



Vanjske površine

- Natkriveni parking (nadstrešnica) – 18,10 m2 (koef. 0,25)


- Natkrivena terasa – 17,20 m2 (koef. 0,25)


- Dvorište – 118,10 m2 (koef. 0,10)



Kat

- Spavaća soba – 11,81 m2


- Dječja soba – 9,62 m2


- Dječja soba – 9,62 m2


- Kupaonica – 5,10 m2


- Garderoba – 5,75 m2


- Hodnik i stepenište – 14,83 m2



Karakteristike gradnje:

- Zidovi: blok opeka 25 cm


- Toplinska izolacija: mineralna vuna 15 cm


- Zvučna izolacija između kuća: elastificirani polistiren 2 × 1 cm


- Limeni pokrov (kompletan sustav: letve, kontra letve, paropropusna vodonepropusna folija, OSB ploče, drveni rogovi, zračni sloj, mineralna vuna, PE folija i završni strop)


- Natkriveni parking popločen tlakovcima


- Ulazni trijem s protukliznim pločicama



Grijanje:

- Podno grijanje u cijeloj kući


- Dizalica topline (struja) – energetski učinkovito i moderno rješenje



Dodatne informacije:

- Prodaja po sistemu ključ u ruke


- Moguć dogovor i kupnja u Roh Bau fazi (cijena na upit)


- Planirano useljenje: srpanj 2027.



Ova nekretnina idealna je za obitelji koje traže moderan, energetski učinkovit dom u mirnom okruženju, uz vlastito dvorište i parkirno mjesto.

Za više informacija i rezervaciju, slobodno nas kontaktirajte.

Stojim vam na raspolaganju za sva pitanja,

Saša Martišek

licencirani agent

T: 097 75 47 775

E: sasa.martisek@c21.hr

REC ID: 1271651

Značajke

  • 135 m2
  • 912 m2
  • 1 kupaonica
  • 4 sobe

Agencija

Logo agencije

CENTURY 21 Lider Nekretnine

Agent

Saša Martišek

Mob: +385977547775

Agencija logo
+
=
REC Kuće Biz
Dogma LUXURY ESCAPE
Bonum Real Estate Croatia
Opatia Riviera Real Estate by SmartInvest
Terra Dalmatica Real Estate
IMMO - real estate agency Split
Kaiser Immobilien Opatija
Search for you