Bibinje
Stan s vrtom - Novogradnja - blizina mora!
MODERAN STAN S VRTOM – BIBINJE – BLIZINA MORA
Na izuzetno atraktivnoj lokaciji u Bibinjama, svega nekoliko minuta hoda od mora, prodaje se moderan i prostran stan u prizemlju nove, kvalitetne stambene zgrade. Zahvaljujući južnoj orijentaciji, stan obiluje prirodnim svjetlom tijekom cijelog dana te pruža iznimno ugodan ambijent za život.
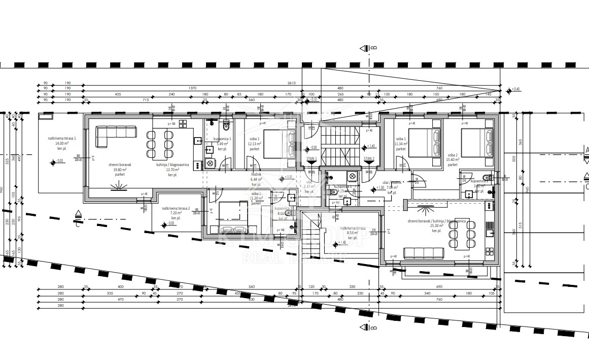
Neto površina stana iznosi 98,9 m2.
Bruto površina stana iznosi 122 m2.
Raspored prostorija
Ulaz — 3,37 m²
Hodnik — 6,44 m²
Spavaća soba 1 — 12,13 m²
Kupaonica 1 — 5,49 m²
Spavaća soba 2 — 11,20 m²
Kupaonica 2 — 4,02 m²
Kuhinja s blagovaonicom i dnevnim boravkom — 33,90 m²
Natkrivena terasa — 14,00 m² (obračunski 7,00 m²)
Natkrivena terasa — 7,20 m² (obračunski 3,60 m²)
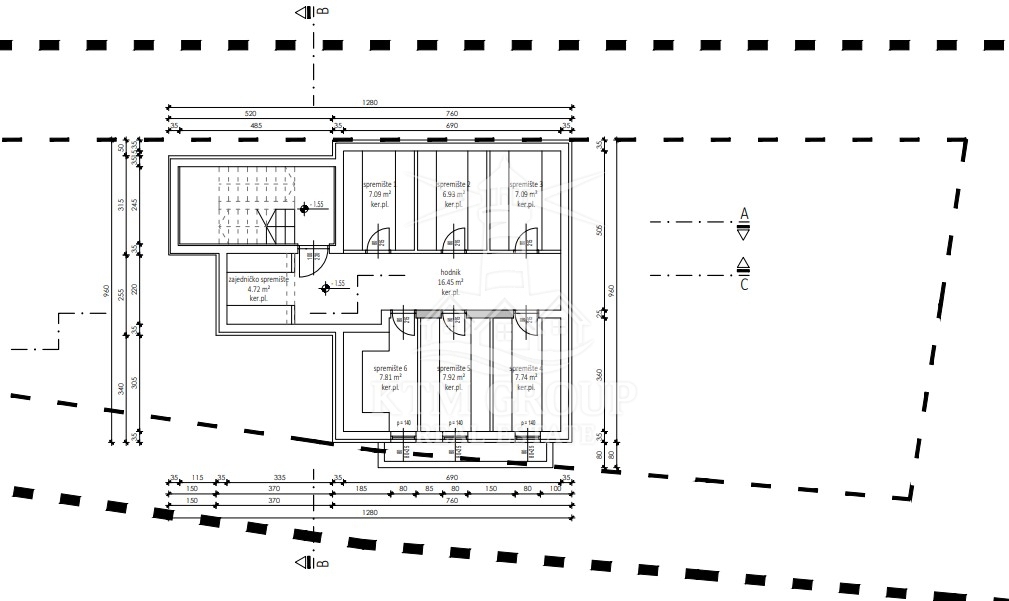
Dodatni sadržaji
Spremište — 7,09 m² (obračunski 3,55 m²)
Privatni vrt — 52 m² (obračunski 5,2 m²)
Parkirno mjesto — 12 m² (obračunski 3 m²)
Stan ima ugrađen Smart Home sustav koji omogućuje daljinsko upravljanje rasvjetom i električnim roletama putem Wi-Fi mreže. Sve funkcije moguće je kontrolirati putem mobilne aplikacije s bilo koje udaljenosti, što pruža veću udobnost i energetsku učinkovitost.
Stan je opremljen podnim grijanjem u cijelom stanu, te klima uređajima u svakoj prostoriji.
Posebna prednost ove nekretnine je privatni vrt, idealan za odmor, druženje, dječju igru ili uređenje vlastite zelene oaze.
Prilikom kupnje ovog stana kupac ne plaća porez na promet nekretnina.
Ključne prednosti nekretnine
- južna orijentacija i obilje prirodne svjetlosti,
- prizemlje s vlastitim vrtom,
- podno grijanje u cijelom stanu,
- dvije kupaonice,
- parkirno mjesto i spremište,
- mirna lokacija u blizini mora,
- odlična nekretnina za stanovanje ili turistički najam
Bibinje su jedno od najpoželjnijih mjesta u okolici Zadra, poznato po prekrasnim plažama, uređenoj šetnici uz more i blizini grada Zadra.
Lokacija stana je dodatna prednost, nalazi se u blizini autoputa, zračne luke, pomorske luke, Marine Dalmacija.
Bibinje su turističko mjesto na moru 6 km jugoistočno od grada Zadra sa svojom 4 km dugom obalom, plažama i šetnicama. Imaju oko 4000 stanovnika koji žive uglavnom od turizma, poljoprivrede i ribarstva.
Na području Bibinja u smjeru Sukošana nalazi se Marina Dalmacija na više od 70000 m2 sa kapacitetom od 1400 vezova za jahte i brodice je najveća marina na Jadranu.
Za dodatne informacije i dogovor oko razgledavanja slobodno nas kontaktirajte.
REC ID: 1271757