Nin
ZADAR, NIN - Građevinsko zemljište 250 m od mora
ZADAR, NIN - Građevinsko zemljište 250 m od mora B
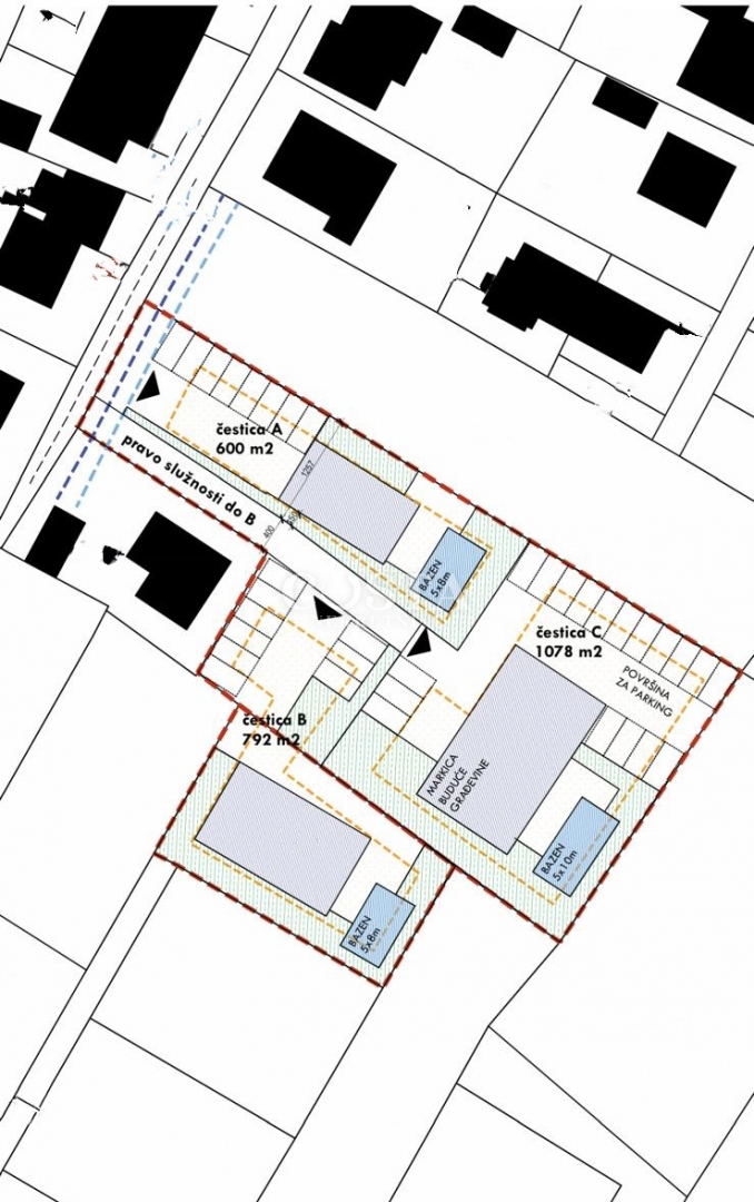
Prodaje se građevinsko zemljište u Ninu pokraj Zadra. Parcela površine 792 m2 nalazi se unutar neizgrađenog uređenog dijela građevinske zone. Na izgradivom dijelu parcele, prikazanom na skici B, širina je 19 m a dužina 29 m. Nastala je parcelacijom dviju čestica. Osiguranim pravom služnosti ima pristupni put makadam koji ima pristup na asfaltiranu cestu širine 3m. Idealno za gradnju kuće za odmor.
Parcela se nalazi na odličnoj lokaciji u predjelu Ždrijac u Ninu. Udaljena je od plaže tek 250 m. Centar Nina udaljen je 1 km. Nin je povijesni gradić u okolici Zadra s najdužom pješčanom plažom pod nazivom Kraljičina plaža udaljena 2,5 km. Urbani centar grad Zadar udaljen je 16 km, a najbliža zračna luka Zemunik 26 km.
Poštovani klijenti, posrednička naknada naplaćuje se u skladu s Općim uvjetima poslovanja
https://costa-nekretnine.hr/o-nama/opci-uvjeti-poslovanja
REC ID: 1271857