Loading...

Senj

SENJ - KOMFORAN TROSOBAN STAN NA TOP LOKACIJI

328.000 €

SENJ - KOMFORAN TROSOBAN STAN NA TOP LOKACIJI SENJ - KOMFORAN TROSOBAN STAN NA TOP LOKACIJI

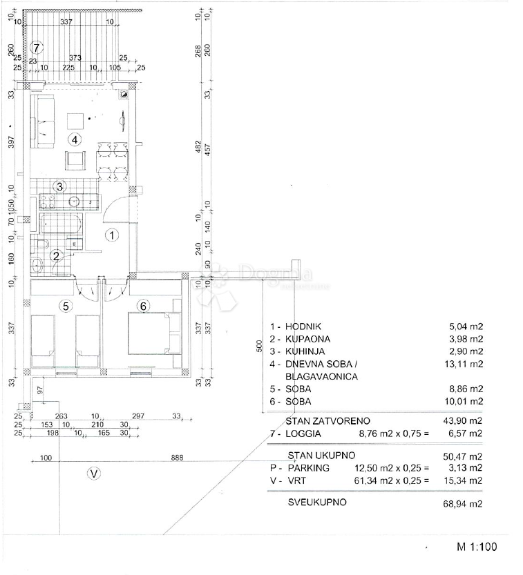
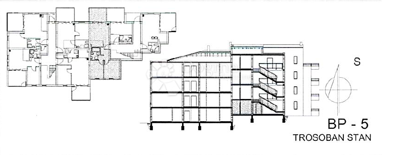
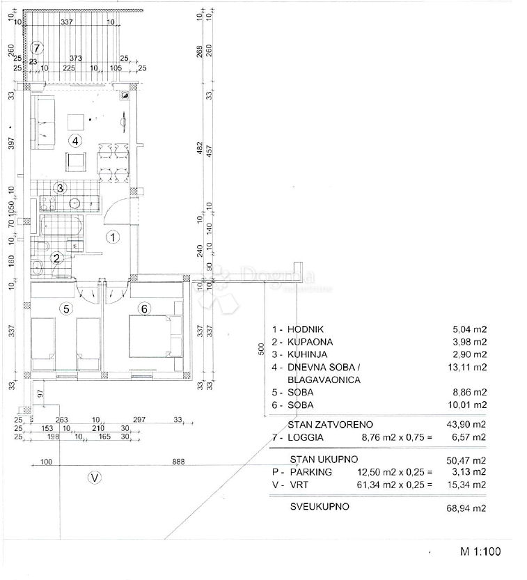
Prodaje se potpuno namješten trosoban stan u visokom prizemlju, smješten uz gradska vrata — u samom centru Senja. Idealna prilika za obiteljski život ili investiciju.

Ključne značajke:
- Ukupna prodajna površina: 84,31 m²
- Vrt: 108 m², potpuno uređen, s vrtnom kućicom, kaminom i vrtnim namještajem
- Ostava u prizemlju
- Ostakljena lođa
- Potpuna klimatizacija (Toshiba, grijanje/hlađenje) — svaka prostorija ima unutarnju jedinicu
- Energetski certifikat: A
- 3 parkirna mjesta

Cijena na upit. Mogućnosti različitih kombinacija i zamjena.

Za više informacija, dokumentaciju ili dogovor za razgledavanje, kontaktirajte nas putem telefona ili e‑pošte.

REC ID: 1273299

Značajke

  • 84 m2
  • 1 kupaonica
  • 3 sobe

Agencija

Logo agencije

Dogma nekretnine d.o.o.

Agent

Krešimir Vidaković

Mob: 099/444-3220

Agencija logo
+
=
REC Kuće Biz
Dogma LUXURY ESCAPE
Bonum Real Estate Croatia
Opatia Riviera Real Estate by SmartInvest
Terra Dalmatica Real Estate
IMMO - real estate agency Split
Kaiser Immobilien Opatija
Search for you