Loading...

Vodice

VODICE, novo, useljivo, prizemlje, vrt 128 m2, mirna lokacija

309.000 €

VODICE, novo, useljivo, prizemlje, vrt 128 m2, mirna lokacija VODICE - Na prodaju moderan stan s 2 spavaće sobe i vrtom, udaljen 800 m od gradske plaže i 1600 m od centra grada!

Upravo je završena izgradnja manje stambene zgrade s ukupno 3 stana koja se nalazi na mirnoj lokaciji. Nekretnina je smještena u već izgrađenom području, okruženom obiteljskim kućama. Dodatna prednost je što se nalazi u slijepoj ulici, što znači minimalan promet i više privatnosti. Ima ukupno tri etaže: prizemlje + 1. kat + 2. kat. Zgrada modernog izgleda je građena kvalitetnim materijalima prema posljednjim standardima gradnje. Od opreme izdvajamo: stiropor fasada, PVC stolarija, električni podizači roleta, komarnicima, klima uređaji u spavaćim sobama i dnevnom boravku, kvalitetne podne obloge, moderne kupaonske sanitarije, električno podno grijanje u kupaonici, kuhinji i dnevnom boravku, staklena ograda na terasama, okućnica uređena prema projektu. Zgrada je završena i useljiva.

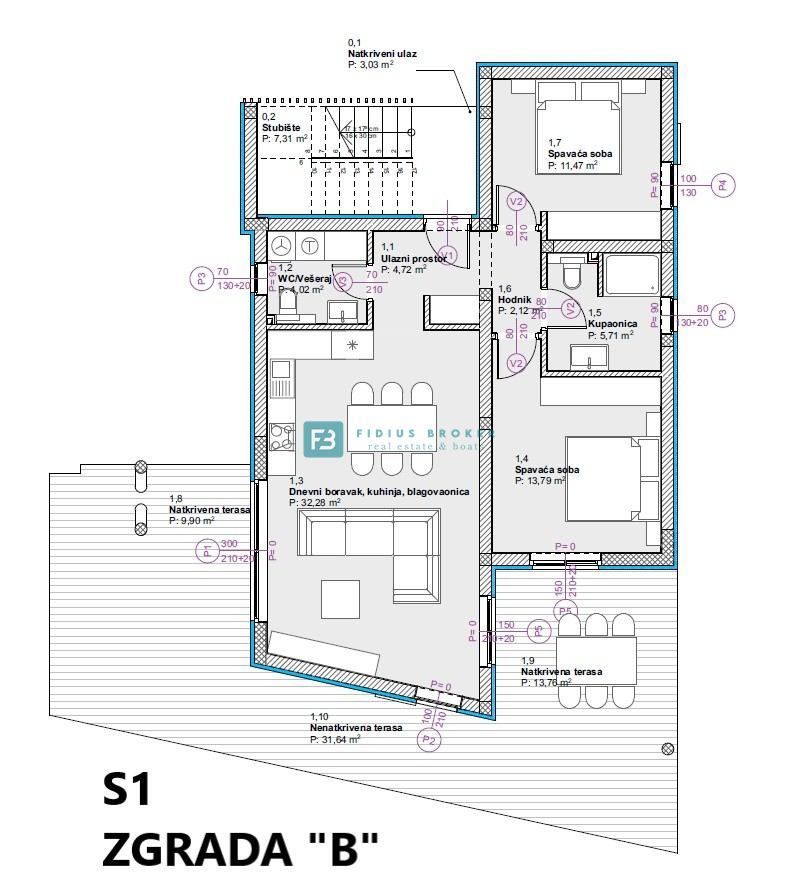
Stan S1 ukupne korisne površine 112,58 m2 (stambena površina 74,11 m2 + terasa 55,3 m2 + vrt 128,08 m2 + parking 28,06 m2) nalazi se u prizemlju. Sastoji se od ulaznog prostora, hodnika, WC-a/praonice, dvije spavaće sobe, kupaonice, kuhinje s blagovaonicom i dnevnog boravka s izlazom na natkrivenu i nenatkrivenu terasu površine 55,3 m2 i vrt površine 128,08 m2. Stanu pripadaju dva parkirna mjesta.

Cijena iznosi: 309.000 €.

OSTALO RASPOLOŽIVO U ZGRADI

1. KAT

Stan S2 ukupne korisne površine 90 m2 (stambena površina 74,11 m2 + terase 25,07 m2 + parking 15,40 m2) nalazi se na 1. katu. Sastoji se od ulaznog prostora, hodnika, WC-a/praonice, dvije spavaće sobe, kupaonice, kuhinje s blagovaonicom i dnevnog boravka s izlazom na dvije natkrivene terase površine 25,07 m2. Stanu pripada jedno parkirno mjesto. Cijena iznosi 279.000 €.

2. KAT

Stan S2 ukupne korisne površine 92,15 m2 (stambena površina 74,11 m2 + terase 25,41 m2 + parking 28,06 m2) nalazi se na 2. katu. Sastoji se od ulaznog prostora, hodnika, WC-a/praonice, dvije spavaće sobe, kupaonice, kuhinje s blagovaonicom i dnevnog boravka s izlazom na dvije natkrivene terase površine 25,41 m2. Stanu pripadaju dva parkirna mjesta. Cijena iznosi 309.000 €.

Za više informacija kontaktirajte nas putem e-maila ili telefona.



REC ID: 1273748

Značajke

  • 112 m2
  • 156 m2
  • 2 kupaonice
  • 3 sobe
  • 800 m od mora

Agencija

Logo agencije

FIDIUS BROKER 2

Agent

Ljubomir Skočić

Mob: 0913375522

Agencija logo
+
=
REC Kuće Biz
Dogma LUXURY ESCAPE
Bonum Real Estate Croatia
Opatia Riviera Real Estate by SmartInvest
Terra Dalmatica Real Estate
IMMO - real estate agency Split
Kaiser Immobilien Opatija
Search for you