Loading...

Krk

Moderna novogradnja s bazenom i pogledom na more

665.000 €

Moderna novogradnja s bazenom i pogledom na more Na mirnoj lokaciji u okolici Krka smjestila se ova elegantna i suvremena dvojna kuća, idealna za one koji traže luksuzan dom u novogradnji. Prostire se na 157 m² kroz dvije etaže te pruža savršenu kombinaciju modernog dizajna, funkcionalnosti i udobnosti, te blizinu svih potrebnih sadržaja.
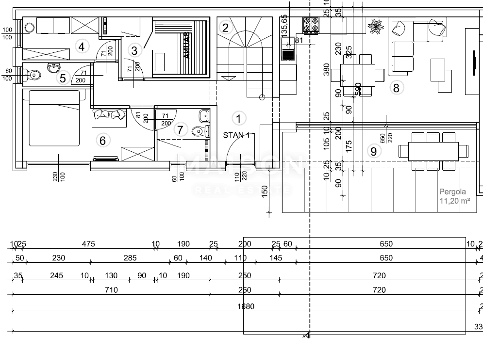
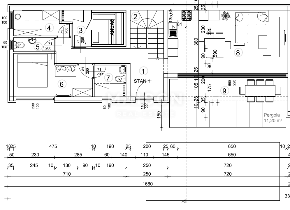
U prizemlju kuće nalazi se prostrani hodnik koji vodi u saunu s tušem, a tu su i vešeraj te zaseban WC. Dodatna pogodnost prizemlja je spavaća soba s vlastitom kupaonicom, idealna za goste ili članove obitelji.
Središnji dio prizemlja čini prozračan open-space prostor koji obuhvaća kuhinju, blagovaonicu i dnevni boravak s izlazom na natkrivenu terasu. Terasa je opremljena pergolom i vodi do prekrasnog vanjskog prostora s grijanim bazenom od 40 m² i sunčalištem, savršenim za opuštanje tijekom cijele godine.
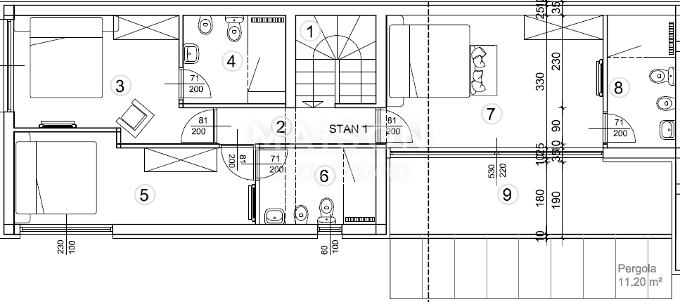
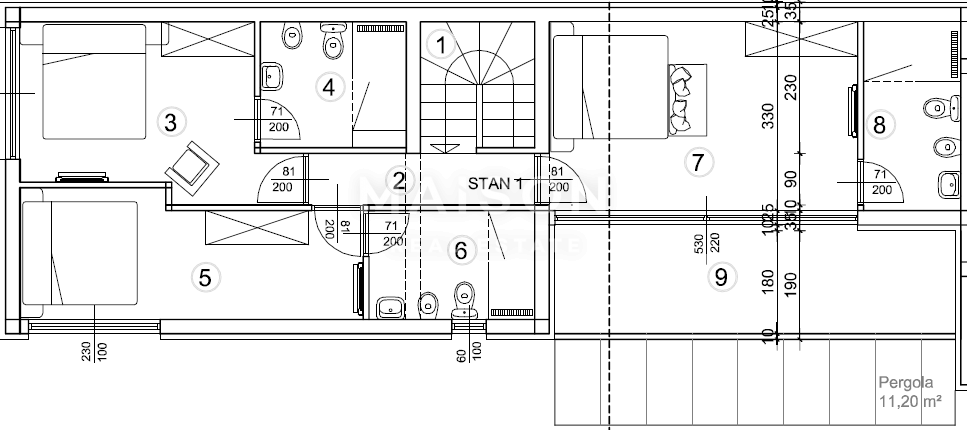
Na katu se nalaze tri prostrane spavaće sobe, svaka s vlastitom kupaonicom, a glavna spavaća soba ima izlaz na prostranu terasu s pergolom i zadivljujućim pogledom na more.
Okućnica je pomno uređena te uključuje grijani bazen, sunčalište i dva parkirna mjesta.
Kuća je opremljena visokokvalitetnom PVC stolarijom s troslojnim staklom, aluminijskim griljama i komarnicima, čime se osigurava odlična izolacija i energetska učinkovitost. Podno grijanje, dizalica topline za grijanje i toplu vodu te klimatizacija u svim prostorijama osiguravaju ugodnu temperaturu tijekom cijele godine.
Dodatnu sigurnost pružaju alarmni sustav i video nadzor. Ugrađena vrhunska keramika naglašava moderan i luksuzan stil interijera.
Ova atraktivna nekretnina predstavlja izvrsnu priliku za sve koji žele suvremeni dom u blizini mora, uz luksuzne sadržaje i vrhunsku gradnju.

Nekretnina je u sustavu PDV-a te kupac ne plaća porez na promet nekretnina.

Kontaktirajte nas za više informacija ili dogovor ogleda nekretnine.

REC ID: 1274064

Značajke

  • 157 m2
  • 350 m2
  • 5 kupaonica
  • 5 soba
  • 700 m od mora
  • Pogled na more
  • Prvi red do mora

Agencija

Logo agencije

MAISON REAL ESTATE

Agent

Barbara Popović

Mob: +385 91 925 9816

Agencija logo
+
=
REC Kuće Biz
Dogma LUXURY ESCAPE
Bonum Real Estate Croatia
Opatia Riviera Real Estate by SmartInvest
Terra Dalmatica Real Estate
IMMO - real estate agency Split
Kaiser Immobilien Opatija
Search for you