Loading...

Jušići

MATULJI, JUŠIĆI – građevinsko zemljište za 13 ekskluzivnih stanova, vrhunska lokacija!

1.100.000 €

MATULJI, JUŠIĆI – građevinsko zemljište za 13 ekskluzivnih stanova, vrhunska lokacija! MATULJI, JUŠIĆI – građevinsko zemljište za 13 ekskluzivnih stanova, vrhunska lokacija!

U DUXu izdavajmo vrhunsku priliku - građevinsko zemljište koje omogućuje izgradnju tri stambene zgrade (A, B i C) s ukupno 13 ekskluzivnih stanova, što ovu nekretninu čini izuzetnom prilikom za investitore.

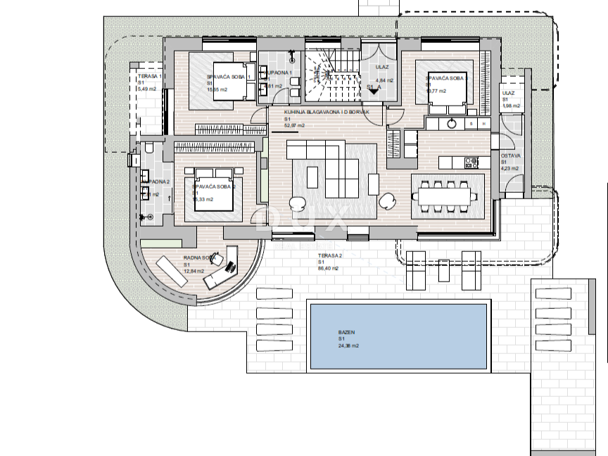
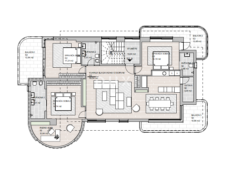
Zgrada A ima površinu 602,96 m² te se sastoji od tri stana: stan S1 u prizemlju zgrade ukupne površine 243,16 m2, stan S2 na prvom katu ukupne površine 179,28 m2 te stan S3 na drugom katu zgrade ukupne površine 180,52 m2.

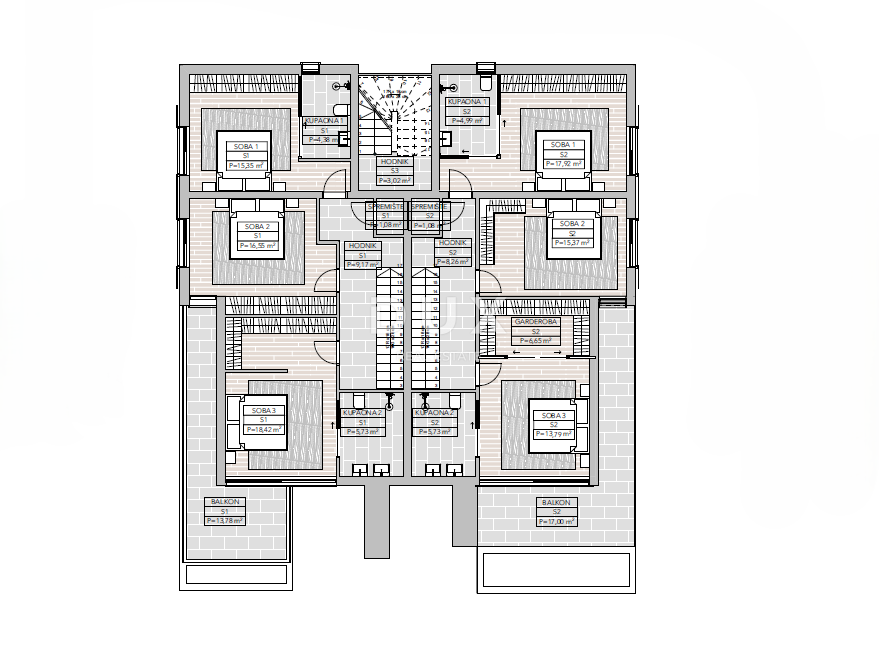
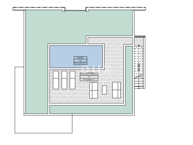
Zgrada B ima površinu 768,6 m² te se sastoji od pet stanova i krovne terase. U suterenu se nalaze stanovi S1 i S2, sa ukupnim površinama od 54, 85m2 te 54, 82 m2. U prizemlju zgrade nalaze se dva stana sa ukupnim površinama od 123, 54 m2 te 123,74 m2. Isto tako, na prvom katu su smještena dva stana ukupnih površina 84,49 m2 te 90,81 m2. Na zadnjoj etaži zgrade, točnije na 2. katu nalazi se stan S3 ukupne površine 178,63 m2. Naime, zgrada B se odlikuje i krovim bazenom te terasom ukupne površine 57,72 m2.

Zgrada C ima površinu 820,69 m² te se sastoji od pet stanova i krovne terase. U suterenu se nalaze stanovi S1 i S2, sa ukupnim površinama od 54, 85m2 te 54, 82 m2. U prizemlju zgrade nalaze se dva stana sa ukupnim površinama od 123, 97 m2 te 121,93 m2. Isto tako, na prvom katu su smještena dva stana ukupnih površina 84,46 m2 te 90,81 m2. Na zadnjoj etaži zgrade, točnije na 2. katu nalazi se stan S3 ukupne površine 189,11 m2. Naime, zgrada C se odlikuje i krovim bazenom te terasom ukupne površine 57,72 m2.

Naime, zemljišta se prodaju s pripremljenim idejnim rješenjima, dok budući investitor treba izraditi glavne i izvedbene projekte te predati zahtjev za ishođenje građevinske dozvole.

Zemljište se nalazi na fantastičnoj, frekventnoj lokaciji u blizini Matulja i Opatije, u uređenom i mirnom okruženju, okružena zelenilom i kvalitetnom novijom gradnjom, što joj daje dodatnu vrijednost i dugoročnu sigurnost ulaganja.

Sva potrebna infrastruktura nalazi se u neposrednoj blizini terena, a položaj omogućuje brz i jednostavan pristup Opatiji, Rijeci i glavnim prometnicama.

Koncept projekta predviđa suvremenu arhitekturu, privatnost, vanjske prostore i bazene, što ovu investiciju čini izuzetno atraktivnom za tržište stanovanja ili turističkog najma.

Za dogovaranje posjete nekretnine nazovite agenta s povjerenjem - konzultacija na njemačkom jeziku moguća.


Poštovani klijenti, agencijska provizija naplaćuje se u skladu s Općim uvjetima poslovanja.
www.dux-nekretnine.hr/opci-uvjeti-poslovanja

REC ID: 1274763

Značajke

  • 1188 m2
  • 3000 m od mora

Agencija

Logo agencije

DUX Nekretnine

Agent

Tony Jerković

Mob: 051518174

Agencija logo
+
=
REC Kuće Biz
Dogma LUXURY ESCAPE
Bonum Real Estate Croatia
Opatia Riviera Real Estate by SmartInvest
Terra Dalmatica Real Estate
IMMO - real estate agency Split
Kaiser Immobilien Opatija
Search for you