Loading...

Malinska

Malinska - dvojna kuća s pogledom na more!

620.000 €

Malinska - dvojna kuća s pogledom na more! Prodaje se dvojna kuća u novogradnji, s bazenom i okućnicom - okolica Malinske

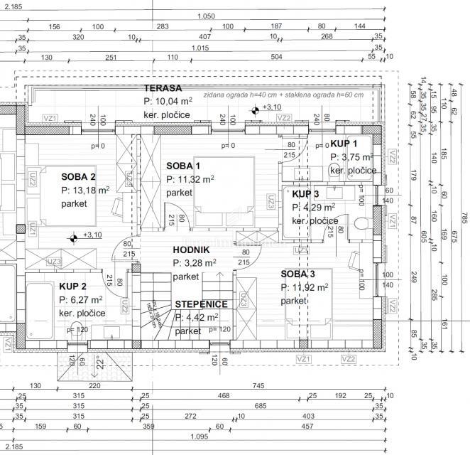
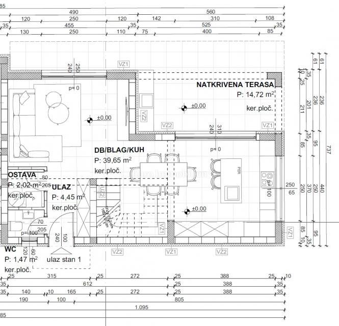
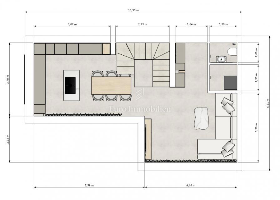
Nekretnina ima površinu od 130 m2 a proteže na prizemlje i kat. U prizemlju se nalazi ulazni prostor, wc, spremište, dnevni boravak s kuhinjom i blagovaonicom otvorenog koncepta i velika natkrivena terasa. Na katu se nalazi hodnik, tri spavaće sobe svaka sa svojom kupaonicom i terasa s pogledom na more. Kuća se prodaje po sistemu ključ u ruke, s uređenom okućnicom s bazenom i dva parkirna mjesta. Kvalitetna gradnja s podnim grijanjem s dizalicom topline, PVC stolarija u dekoru drva s roletama, klimatizacija svih prostorija, grijani bazen i ljetna kuhinja. Na okućnici se nalazi spremište u kojem će biti i bazenska tehnika. Useljenje se očekuje za ljeto 2026.
PDV u cijeni, prilika!

Za sve informacije i dogovor razgledavanja dostupni smo na broju 0994440660 ili u poslovnici Malinska na adresi Dubašljanska 111.

Provizija agencije za kupca iznosi 3% + PDV i plaća se u slučaju kupovine nekretnine kod zaključenja kupoprodajnog Ugovora.

REC ID: 1275319

Značajke

  • 130 m2
  • 200 m2
  • 4 kupaonice
  • 4 sobe
  • 2000 m od mora
  • Pogled na more

Agencija

Logo agencije

EURO IMMOBILIEN

Agent

Euro Immobilien d.o.o.

Mob: 00385 (0)99 444 0660

Agencija logo
+
=
REC Kuće Biz
Dogma LUXURY ESCAPE
Bonum Real Estate Croatia
Opatia Riviera Real Estate by SmartInvest
Terra Dalmatica Real Estate
IMMO - real estate agency Split
Kaiser Immobilien Opatija
Search for you