Loading...

Mandre

Mandre - dvoetažni stan u prvom redu

635.000 €

Mandre - dvoetažni stan u prvom redu PRVI RED DO MORA – EKSKLUZIVNA NOVOGRADNJA S LIFTOM – DVOETAŽNI STAN S2

U ponudi je dvoetažni stan S2 ukupne neto površine 77,77 m2, s pripadcima ukupne obračunske površine cca 154 m2, smješten u ekskluzivnoj novogradnji u prvom redu do mora u Mandrama.

Zgrada je moderna, opremljena liftom i projektirana za visoku razinu komfora i dugoročnu kvalitetu stanovanja.

Projekt se ističe suvremenom arhitekturom, vrhunskom izvedbom i izuzetnom lokacijom tik uz more. Velike staklene stijene s podizno–kliznom ALU stolarijom osiguravaju obilje prirodnog svjetla i ugodan boravak tijekom cijele godine, dok podno grijanje i klimatizacija pridonose visokom standardu stanovanja.

Planirani završetak radova: prije ljeta 2026. godine

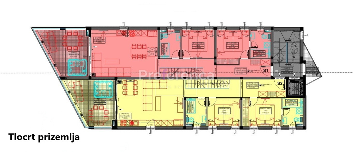
RASPORED – DVOETAŽNI STAN

Stan je raspoređen na dvije etaže, s jasnim razdvajanjem prostora koje omogućuje veću privatnost i funkcionalnost.

DONJA ETAŽA (SUTEREN)

- ulazni prostor sa stubištem
- spremište
- kupaonica
- spavaća soba
- dnevni boravak s kuhinjom i blagovaonicom

Ova etaža može funkcionirati kao zasebna cjelina, idealna za goste ili odvojeni boravak.

GORNJA ETAŽA (PRIZEMLJE)

- ulazni prostor sa stubištem
- dvije spavaće sobe
- dvije kupaonice
- prostrani dnevni boravak s kuhinjom i blagovaonicom
- izlaz na natkrivenu terasu

Iz dnevnog prostora izlazi se na natkrivenu terasu površine 18,07 m2, koja je podignuta u odnosu na razinu ulice, što osigurava veću privatnost i ugodniji boravak na otvorenom.

Iz terase se pristupa privatnom vrtu ukupne površine 74,17 m2, koji pruža dovoljno prostora za boravak, druženje ili uređenje prema vlastitim željama.

Iz vrta je omogućen direktan pristup do parkirnih mjesta, što čini svakodnevno korištenje vrlo praktičnim.

Stan ima ulaz s dvije etaže – iz suterena i prizemlja, što omogućuje fleksibilno korištenje prostora i jednostavno odvajanje zona.

Za više informacija i razgledavanje, slobodno se javite.

REC ID: 1276155

Značajke

  • 155 m2
  • 3 kupaonice
  • 7 soba
  • Prvi red do mora

Agencija

Logo agencije

RealEstate Novalja

Agent

Zorica Tamarut

Mob: 0958054460

Agencija logo
+
=
REC Kuće Biz
Dogma LUXURY ESCAPE
Bonum Real Estate Croatia
Opatia Riviera Real Estate by SmartInvest
Terra Dalmatica Real Estate
IMMO - real estate agency Split
Kaiser Immobilien Opatija
Search for you