Tar
Tar – NOVOGRADNJA! 2S+DB, terasa, 2 parkinga
Stan koji ima sve što kupci traže – 2 spavaće sobe, 2 sanitarna čvora, terasa i 2 parkirna mjesta u modernoj novogradnji u Taru.
U mjestu Tar, između Poreča i Novigrada, prodaje se moderan stan u izgradnji, smješten u kvalitetnoj stambenoj zgradi s liftom.
Udaljenost od mora iznosi 3500 m, a od centra mjesta svega 500 m.
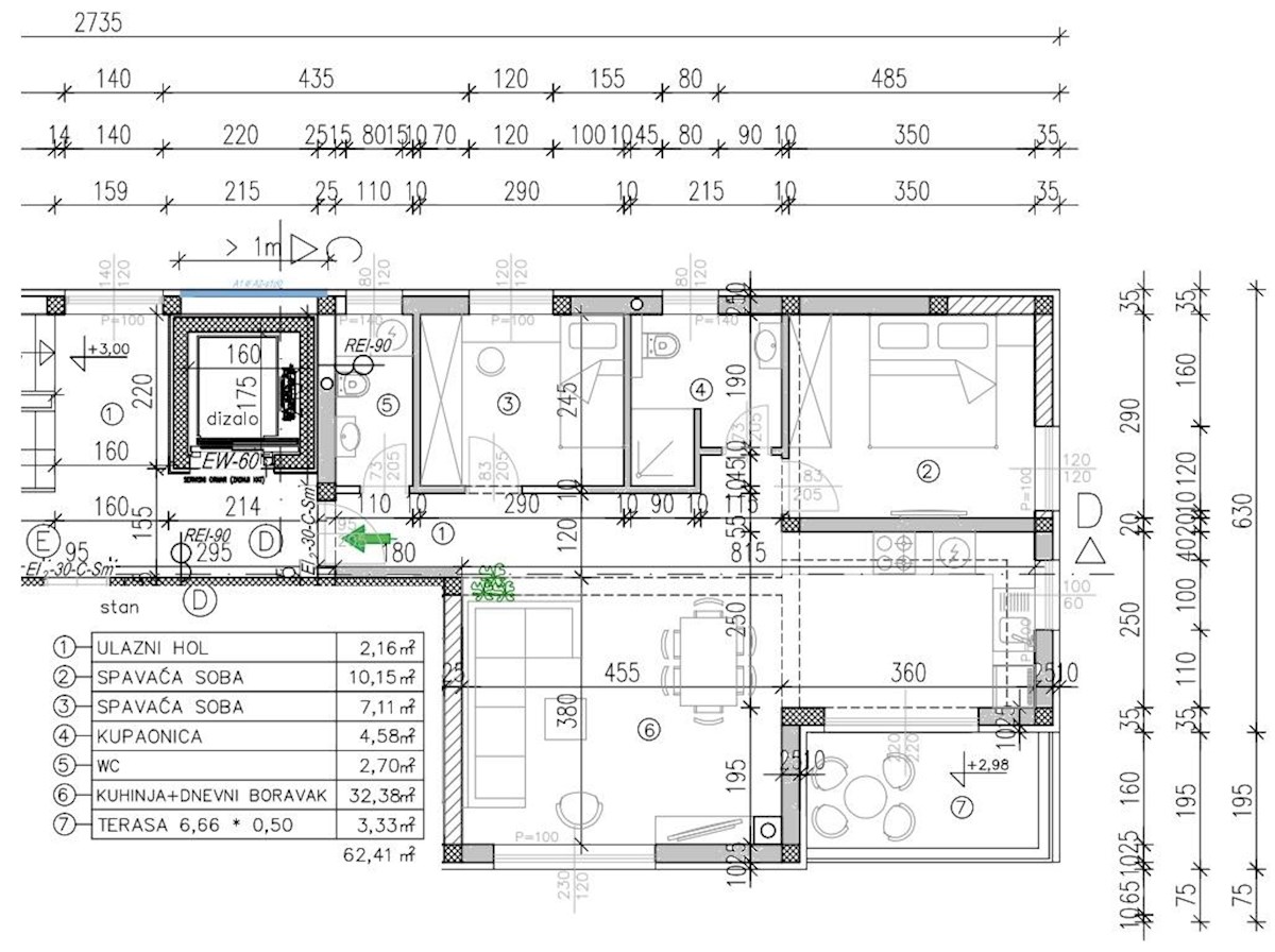
Stan oznake D, ukupne površine 62,41 m², nalazi se u zgradi s ukupno 11 stanova raspoređenih na četiri etaže.
Raspored je funkcionalan i jasno dijeli dnevni i noćni dio.
Raspored:
ulazni hodnik (2,16 m²)
dnevni boravak s kuhinjom i blagovaonicom (32,38 m²)
dvije spavaće sobe (10,15 m² i 7,11 m²)
kupaonica (4,58 m²)
WC (2,70 m²)
natkrivena terasa (3,33 m²)
Prednosti:
prostrani open space dnevni dio
izlaz na terasu
dvije spavaće sobe + dodatni WC
odlična iskorištenost prostora
idealno za najam ili stanovanje
Oprema:
električno podno grijanje
priprema za inverter klima uređaje
PVC stolarija s troslojnim staklom
kvalitetna toplinska i zvučna izolacija
lift u zgradi
dva parkirna mjesta
Nekretnina je idealna za obiteljski život, odmor ili turistički najam zahvaljujući funkcionalnom rasporedu i odličnoj lokaciji.
Za više informacija i razgled slobodno nas kontaktirajte.
REC ID: 1281220