Loading...

Blato

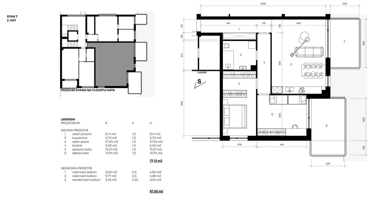
Stan: Zagreb (Odra), 87.65 m2

289.245 €

Stan: Zagreb (Odra), 87.65 m2 Prodaje se trosoban stan S7 obračunske površine 87,65 m2 na 2. katu moderne zgrade s dizalom s ukupno 10 stambenih jedinica u izgradnji.
Zatvoreni dio površine od 77,13 m2 se sastoji od: ulaznog hodnika, dnevnog boravka s kuhinjom i blagovaonicom, dvije spavaće sobe i kupaonice s WC-om, dok ostatak površine otpada na dva natkrivena balkona od 13,11 m2 i 9,60 m2(obračunski 5,72 m2 i  4,80 m2).
Podno grijanje putem dizalice topline koje osigurava ravnomjernu toplinu, energetsku učinkovitost i dugoročno niže režijske troškove, a hlađenje svake sobe je preko klima uređaja.
Zgrada ima armirano-betonsku nosivu konstrukciju koja pruža vrhunsku protupotresnu zaštitu. Ulazna vrata u stanove su protuprovalna i protupožarna. U stanove se ugrađuje višeslojni hrastov parket, keramika najviše klase, te visokokvalitetna PVC stolarija s trostrukim IZO staklom i pripremom za komarnike.
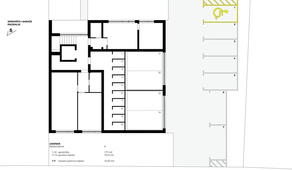
Uz stan ide jedno vanjsko parkirno mjesto (10.000 EUR, 12,50 m2) ili garažno-parkirno mjesto u prizemlju (20.000 EUR, 13,75 m2) i jedno spremište u prizemlju (6.000 EUR, oko 1,77 m2).
Gradnja će početi u proljeće 2026. godine, a useljenje je predviđeno za ljeto 2027. godine i stanovi su u vlasništvu pravne osobe tako da je PDV uključen u cijenu pa kupac ne plaća porez na promet nekretnina.Prednosti lokacije: neposredna blizina autobusne  i željezničke stanice, brz pristup izlazu na autocestu, manje od 15 minuta vožnje do centra Zagreba, odlična povezanost sa zračnom lukom, autobusnim i željezničkim kolodvorom, u blizini se nalaze svi sadržaji potrebni za ugodan i kvalitetan svakodnevni život.
Za dodatne informacije ili dogovor oko razgledavanja, slobodno nas kontaktirajte.

REC ID: 1281688

Značajke

  • 87 m2
  • 2 sobe
  • 2 kata

Agencija

Logo agencije

Casa Croatia

Agent

Stjepan Černetić

Mob: +385 99 670 6509

Agencija logo
+
=
REC Kuće Biz
Dogma LUXURY ESCAPE
Bonum Real Estate Croatia
Opatia Riviera Real Estate by SmartInvest
Terra Dalmatica Real Estate
IMMO - real estate agency Split
Kaiser Immobilien Opatija
Search for you