Loading...

Kobiljak

Zagreb, Sesvete - zemljište s građevinskom dozvolom i projektom

139.900 €

Zagreb, Sesvete - zemljište s građevinskom dozvolom i projektom RE/MAX Centar nekretnina iz svoje ponude izdvaja atraktivno građevinsko zemljište smješteno na izvrsnoj lokaciji u Kobiljaku, u Sesvetama.

Zemljište se nalazi u mirnoj i slijepoj ulici, idealnoj za obiteljski život, te obuhvaća površinu od 648 m². Posebna vrijednost ove nekretnine je kompletna i već ishodovana dokumentacija koja budućem vlasniku omogućuje brzi početak gradnje: pravomoćna građevinska dozvola, statički proračun, geodetski elaborat te suvremeni arhitektonski projekt za izgradnju moderne obiteljske kuće bruto površine 280 m².

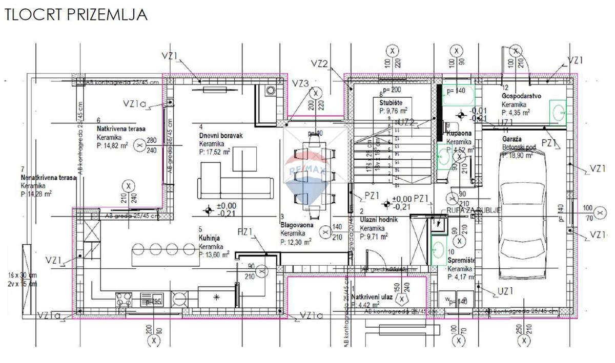
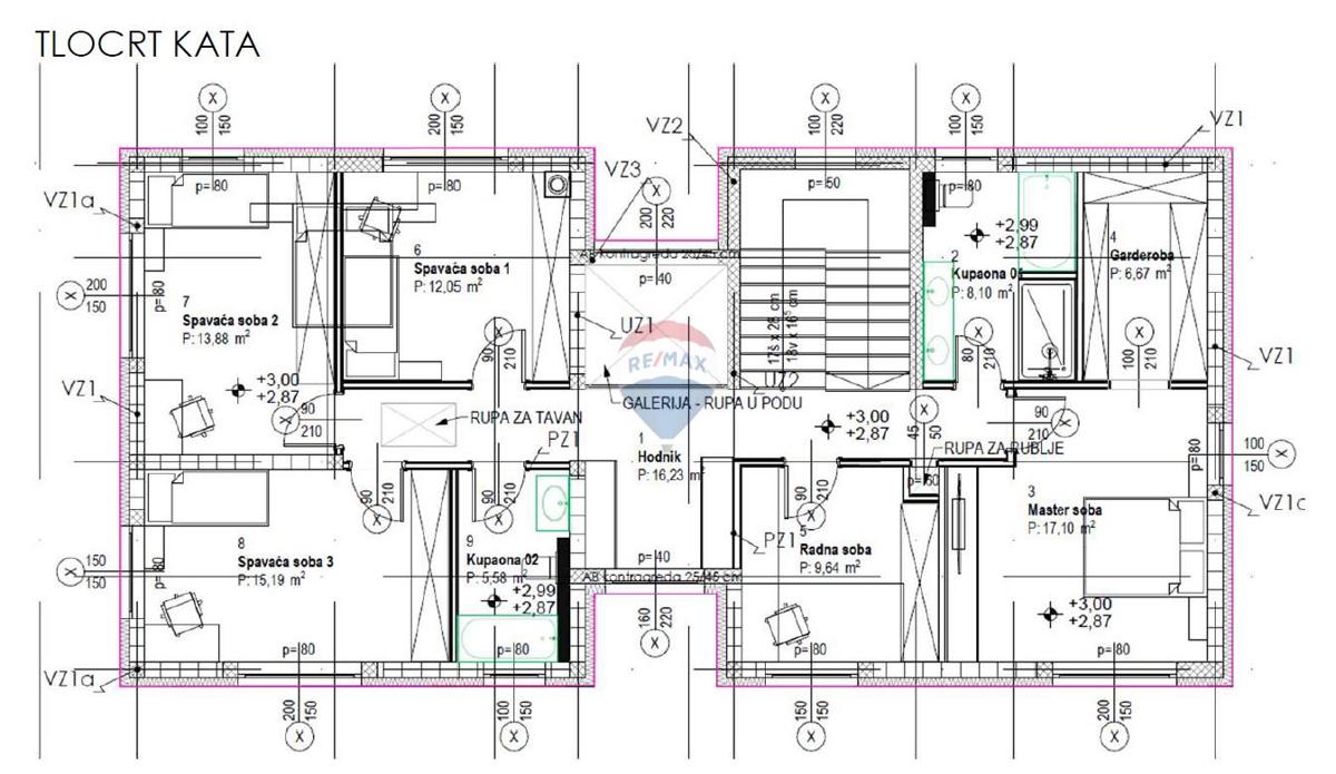
Projektirana kuća osmišljena je s naglaskom na funkcionalnost i udobnost. U prizemlju se nalazi natkriveni ulaz, ulazni hodnik te prostrani open-space dnevni boravak s kuhinjom i blagovaonicom, iz kojeg se izlazi na veliku, ugodnu terasu. Na istoj etaži predviđeni su još kupaonica, praonica i garaža. Kat kuće nudi dodatnu privatnost i komfor, a sastoji se od tri spavaće sobe, radne sobe, galerije s hodnikom, dvije kupaonice te prostrane master spavaće sobe s vlastitom garderobom.

Što se tiče infrastrukture, svi potrebni priključci nalaze se uz parcelu (struja, plin i kanalizacija), dok je voda već dovedena na zemljište i izveden je šaht.

Lokacija nudi idealan spoj mira i dostupnosti — u neposrednoj blizini nalaze se svi sadržaji potrebni za svakodnevni život: trgovine, kafići, restorani, ljekarna, kao i stanice javnog gradskog prijevoza.

Savršena prilika za izgradnju obiteljskog doma na mirnoj, a izvrsno povezanoj lokaciji.

REC ID: 1281774

Značajke

  • 648 m2

Agencija

Logo agencije

Remax Centar nekretnina

Agent

Dora Rukavina

Mob: +385 91 641 0057

Agencija logo
+
=
REC Kuće Biz
Dogma LUXURY ESCAPE
Bonum Real Estate Croatia
Opatia Riviera Real Estate by SmartInvest
Terra Dalmatica Real Estate
IMMO - real estate agency Split
Kaiser Immobilien Opatija
Search for you