Loading...

Rijeka

RIJEKA, CENTAR – Gospodski stan s projektom za 2 stambene jedinice! Investicija na elitnoj lokaciji!

230.000 €

RIJEKA, CENTAR – Gospodski stan s projektom za 2 stambene jedinice! Investicija na elitnoj lokaciji! RIJEKA, CENTAR – Gospodski stan s projektom za 2 stambene jedinice! Investicija na elitnoj lokaciji!

Rijeka, grad bogate industrijske i kulturne baštine, nositelj titule Europske prijestolnice kulture, oduvijek je privlačila one koji znaju prepoznati vrijednost urbanog života uz more. Kombinacija arhitekture austrougarskog stila, mediteranskog šarma i suvremene gradske dinamike čini je idealnim okruženjem za život, posao ili ulaganje.

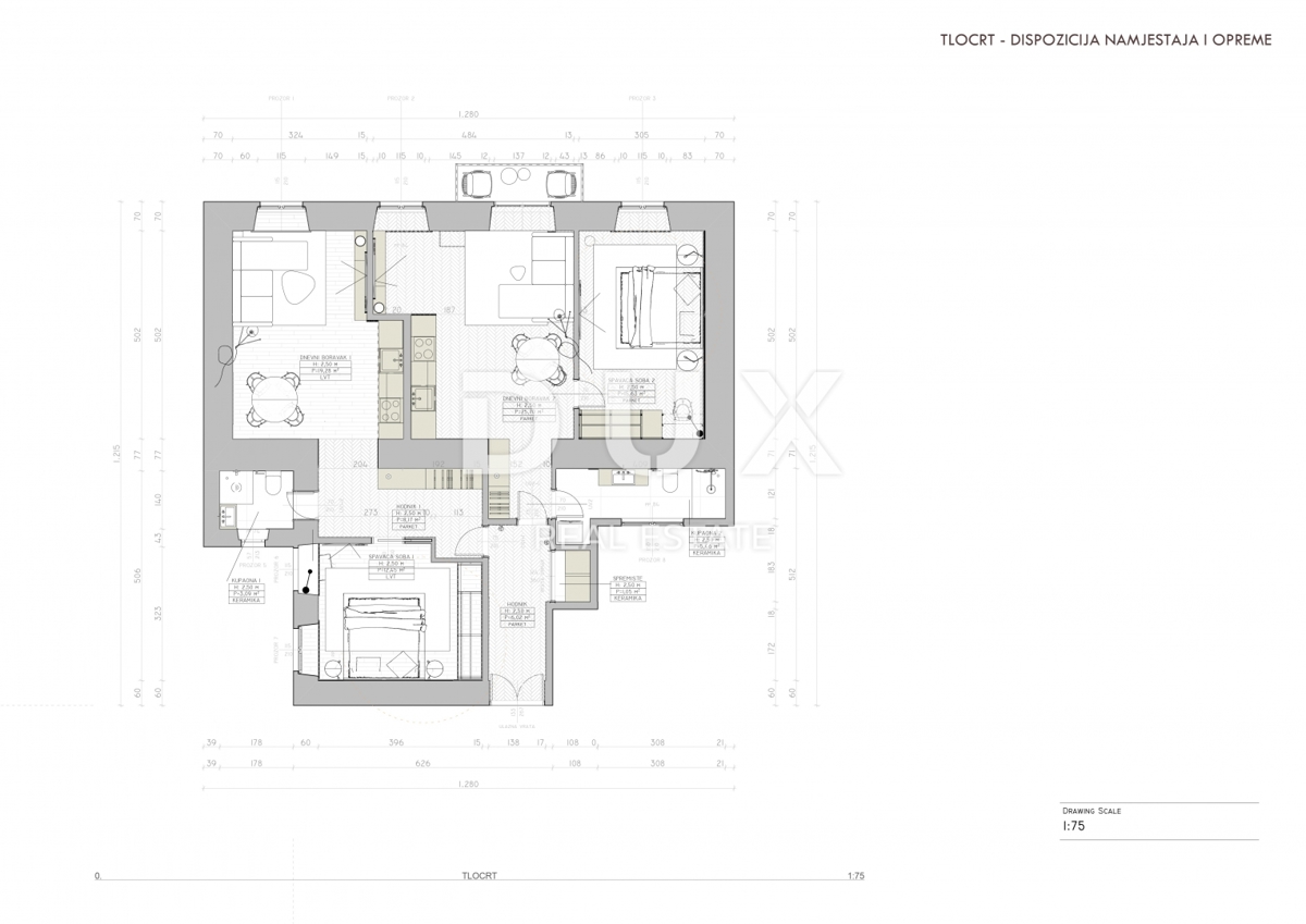
U samom središtu grada, svega nekoliko koraka od tržnice, HNK Ivana pl. Zajca, Korza i obale, smješten je prostrani stan unutar reprezentativne povijesne zgrade. Površine gotovo 100 m², ovaj prostor odiše gospodskim karakterom – visoki stropovi, veliki prozori i bogata prostornost daju mu poseban ugođaj i brojne mogućnosti.

Za ovu nekretninu već postoji izrađen projekt adaptacije kojim se stan može podijeliti na dvije funkcionalne stambene jedinice, što ga čini izuzetno atraktivnim za turistički najam, dugoročno iznajmljivanje ili kombinaciju stanovanja i investicije. Kupnjom putem DUX nekretnina, uz podršku naše arhitektice, moguće su i preinake postojećeg projekta, kao i kompletna razrada interijera i stručni nadzor kroz sve faze realizacije – do zadnjeg detalja.

Ovakve prilike na ovakvoj lokaciji rijetko se pojavljuju. Spoj mikrolokacije, arhitektonske vrijednosti i investicijskog potencijala daje ovoj nekretnini jedinstveno mjesto na tržištu.

Za dodatne informacije ili dogovor za razgledavanje, kontaktirajte me s povjerenjem, bit će mi zadovoljstvo da pomognem u ostvarenju Vaših snova!

***
Poštovani klijenti, agencijska provizija naplaćuje se u skladu s Općim uvjetima poslovanja:
www.dux-nekretnine.hr/opci-uvjeti-poslovanja

REC ID: 1281901

Značajke

  • 98 m2
  • 2 kupaonice
  • 5 soba
  • 1 kat
  • 200 m od mora

Agencija

Logo agencije

DUX Nekretnine

Agent

Tony Jerković

Mob: 051518174

Agencija logo
+
=
REC Kuće Biz
Dogma LUXURY ESCAPE
Bonum Real Estate Croatia
Opatia Riviera Real Estate by SmartInvest
Terra Dalmatica Real Estate
IMMO - real estate agency Split
Kaiser Immobilien Opatija
Search for you