Škurinje
RIJEKA, ŠKURINJE - Kuća u nizu u roh-bau fazi
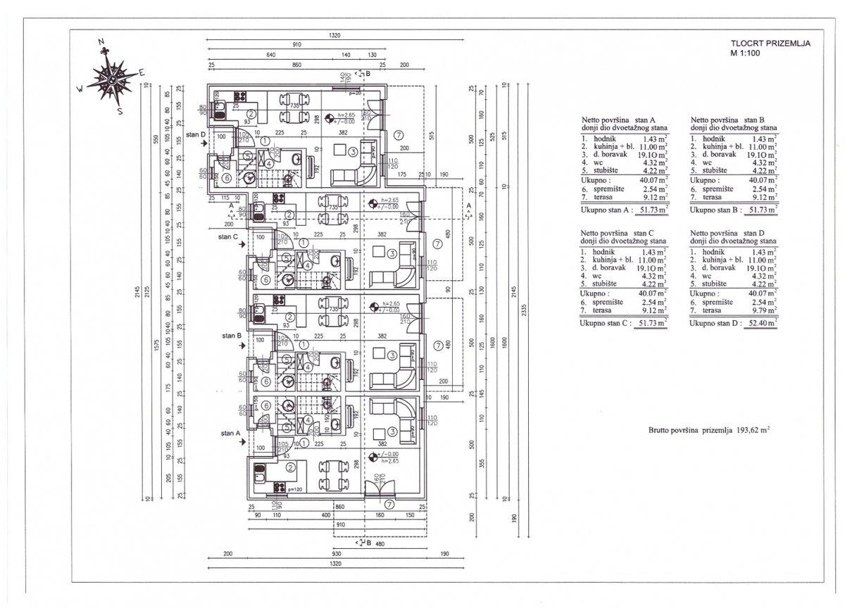
U Tibljaši na Škurinjama prodaje se kuća u nizu, oko 90 m², raspoređena na dvije etaže, u roh-bau fazi. Ulica nije tranzitna, pa je promet manji nego na rubovima naselja, a položaj unutar niza daje mirniji svakodnevni ritam u odnosu na prometnije dijelove.
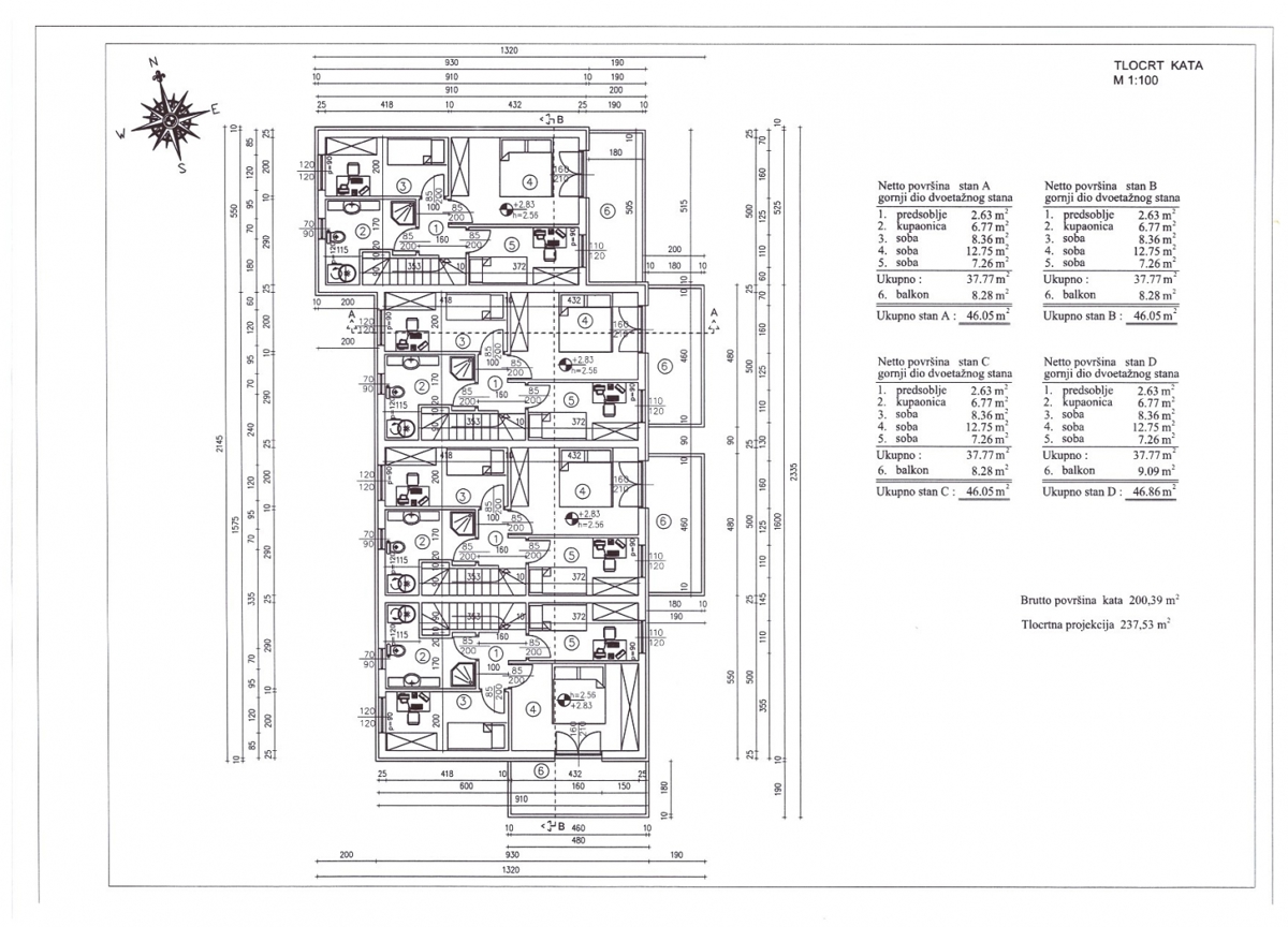
Prizemlje je organizirano oko dnevnog prostora s kuhinjom i blagovaonicom. Gostinjski WC i direktan izlaz na terasu i dvorište su tu. Taj dio kuće koristi se kroz veći dio dana. Kat donosi tri sobe i kupaonicu. Jednu sobu mnogi koriste kao radnu, mada to ostaje na kupcu. Glavna spavaća soba ima izlaz na balkon koji se može koristiti kao dodatni vanjski prostor, iako nema pogled na more.
Kuća dijeli zid s obje strane. Okućnica je manja nego kod krajnjih jedinica u nizu, ali i dalje omogućuje boravak vani bez potrebe za odlaskom iz kuće. To su stvarne razlike u odnosu na krajnju poziciju i vrijedi ih znati unaprijed.
Podno grijanje putem dizalice topline i uređenje okoliša uključeni su u projekt, bez radijatora u prostoru. Podne obloge, sanitarije i bojanje ostaju na kupcu, što znači dodatno vrijeme i ulaganje prije useljenja, ali i mogućnost da se završni izgled prilagodi bez naknadnih preinaka.
Završetak je planiran za kraj 2026. godine. U ovoj fazi moguće je još utjecati na dio završnih rješenja. Uz kuću dolaze dva parkirna mjesta.
Poštovani klijenti, agencijska provizija naplaćuje se u skladu s Općim uvjetima poslovanja:
www.myadriatic.hr/opci-uvjeti-poslovanja
REC ID: 1282403