Loading...

Rovanjska

ROVANJSKA-NOVI APARTMANPRIZEMLJE S VRTOM

225.000 €

ROVANJSKA-NOVI APARTMANPRIZEMLJE S VRTOM ROVANJSKA - prodaje se predivan dvosoban stan S2 U Prizemlju od 65 m2, 500m od mora s panoramskim pogledom na Jadran!

Na prodaju je ekskluzivni projekt od 6 luksuznih apartmana koji predstavlja savršen spoj mediteranskog ambijenta i vrhunske kvalitete stanovanja.
Velike staklene stijene, pažljivo projektiran raspored i prostrane terase omogućuju obilje svjetla te pružaju predivan panoramski pogled na Jadransko more s 1. i 2. kata.
Apartmani u prizemlju nude dodatnu razinu ekskluzivnosti uz privatne vrtove površine oko 160 m2, idealne za opuštanje ili stvaranje vlastite oaze na otvorenom.
Lokacija projekta pruža savršenu ravnotežu između privatnosti i izvrsne prometne povezanosti.
Plaža se nalazi na svega 500 metara udaljenosti, dok su grad Zadar i zračna luka udaljeni približno 30 minuta vožnje.
Projekt jamči visoku razinu kvalitete gradnje, suvremeni standard i dugoročnu vrijednost nekretnine.

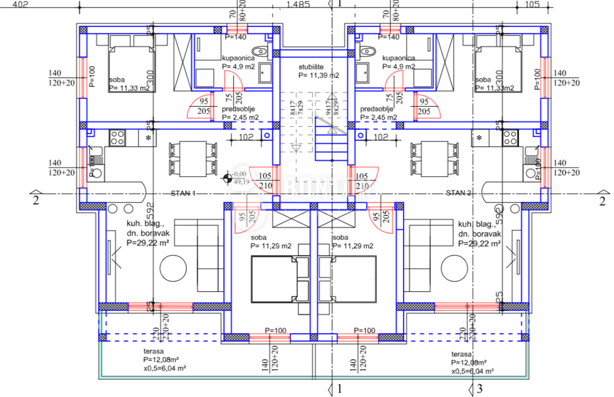
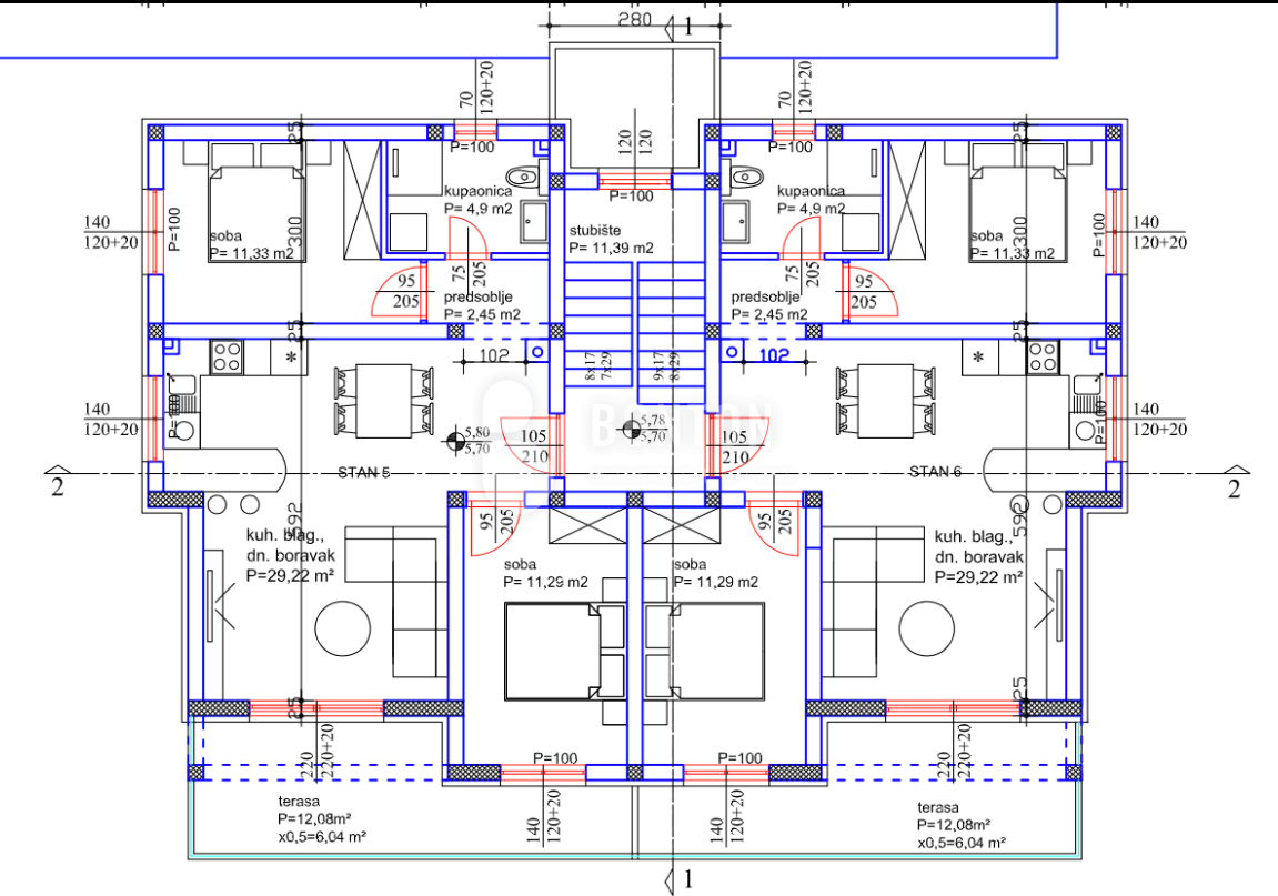
Stan S6 se nalazi na 2. katu i sastoji se od:
- Predsoblja (2,45 m2)
- Kupaonice (4,9 m2)
- Soba 1 (11,33 m2)
- Soba 2 ( 11,29 m2)
- Kuhinje, blag. i dn.boravak (29,22 m2)
- Terase ( 12,08 m2, 6,04 m2 neto )
Ukupna stambena površina stana iznosi: 59,19 m2.
Stanu pripada i 1 parkirno mjesto.
Stanu ide i dio -Vrta u prizemju od cc 80m
Ukupna netto površina sa pripadcima iznosi81,23 m2.

Na prodaju su sljedeće stambene jedinice:
S1 – PRODANO!
S2 – dvosobni stan od 81,23 m2 u prizemlju s vrtom - 225.000,00 €
S3 – PRODANO!
S4 – dvosobni stan od 65,23 m2 na 1. katu - 250.000,00 €
S5 – dvosobni stan od 65,23 m2 na 2. katu - 270.000,00 €
S6 – dvosobni stan od 65,23 m2 na 2. katu - 270.000,00 €

Zgrada će biti izgrađena s 10 cm toplinske izolacije, što će osigurati visoku energetsku učinkovitost.
Ugradit će se kvalitetna troslojna stolarija u modernoj antracit boji, s električnim roletama i komarnicima.
Svaki stan bit će opremljen s tri split klima uređaja, a u kupaonicama će biti osigurano podno grijanje za dodatnu udobnost.

Rovanjska je mirno primorsko mjesto smješteno u podnožju planine Velebit, poznato po kristalno čistom moru i opuštenoj mediteranskoj atmosferi.
Odlično je prometno povezano jer se nalazi u blizini autoceste i svega tridesetak minuta vožnje od grada Zadar.
Ovo malo dalmatinsko mjesto idealno je za miran odmor, ali i kao polazište za istraživanje prirodnih ljepota poput planine i obližnjih nacionalnih parkova.
Ova nekretnina predstavlja iznimnu priliku za luksuzan život uz more, ali i atraktivnu investiciju s velikim potencijalom za turistički najam na jednoj od poželjnijih destinacija na Jadranu.

Planirani završetak radova i useljenje su planirani na ljeto 2027.g.

*KUPAC NE PLAĆA AGENCIJSKU PROVIZIJU!

Zgrada će biti izgrađena s 10 cm toplinske izolacije, što će osigurati visoku energetsku učinkovitost.
Ugradit će se kvalitetna troslojna stolarija u modernoj antracit boji, s električnim roletama i komarnicima.
Temeljenje:
Monolitni trakasti temelji prema izvedbenim projektima.
Hidroizolacija:
Ispod podova koji su u kontaktu s tlom izvodi se jednoslojna hidroizolacija od debelih bitumenskih traka.
Zidovi:
Vanjski pregradni zidovi: U pravilu se izvode od blok opeke debljine 25 cm.
Pregradni zidovi između stanova:
Zidanje od blok opeke debljine 25 cm.
Nadvoji:
.
Toplinska izolacija:
Na vanjskim zidovima predviđena je toplinska izolacija debljine 10 cm. Materijal izolacije (npr. AT-GRAFIT) je ekspandirana plastična pjena, mehanički pričvršćena.
Na armiranobetonske konstrukcije postavlja se dodatna ekstrudirana toplinska izolacija debljine 6 cm (npr. AT EXPERT FIX).
Na armiranobetonske stropove izvodi se sloj od 6 cm prema projektu, koji uključuje odgovarajuću toplinsku i zvučnu izolaciju od koraka.

Stolarija:
Unutarnja vrata: vrata s dekor folijom, opremljena potrebnim okovima
Ulazna vrata: PVC ulazna vrata sa sigurnosnom bravom
Vanjska stolarija: Thermoplan, troslojno ostakljenje, antracit boje, 6-komorni PVC profili
Zasjenjenje:
Svaki prozor i balkonska vrata opremljeni su motoriziranim PVC roletama i komarnicima.

Podne i zidne obloge:
U hodnicima, mokrim čvorovima, kuhinji, blagovaonici i sobama postavljaju se keramičke pločice i gres kao hladna obloga.

Bojanje:
Fasada: završna žbuka različite teksture i boje.
Unutarnje površine: bijelo bojanje disperzijskom bojom.
Unutarnje zidne i stropne površine:
Na zidanim i betonskim površinama izvodi se strojno nanesena, zaglađena žbuka iz tvornički pripremljenog suhog morta (gletano i bojano).
U mokrim prostorijama, u zoni tuša, nanosi se premazna hidroizolacija do visine 2,00 m.
Cijela podna površina kupaonice ima premaznu hidroizolaciju s podizanjem uz rubove od 10 cm.

Strojarske instalacije:
U apartmanima su ugrađena 3 komada split klima uređaja za hlađenje/grijanje.
Opskrba toplom vodom osigurana je uređajem ARISTON VELIS EVO PLUS 80 WI-FI (ili ekvivalentnim).
U kupaonicama je predviđeno električno podno grijanje.
Svaki stan bit će opremljen s tri split klima uređaja, a u kupaonicama
će biti osigurano podno grijanje za dodatnu udobnost.


Rovanjska je mirno primorsko mjesto smješteno u podnožju planine Velebit, poznato po kristalno čistom moru i opuštenoj mediteranskoj atmosferi.
Odlično je prometno povezano jer se nalazi u blizini autoceste i svega tridesetak minuta vožnje od grada Zadar.
Ovo malo dalmatinsko mjesto idealno je za miran odmor, ali i kao polazište za istraživanje prirodnih ljepota poput planine i obližnjih nacionalnih parkova.
Ova nekretnina predstavlja iznimnu priliku za luksuzan život uz more, ali i atraktivnu investiciju s velikim potencijalom za turistički najam na jednoj od poželjnijih destinacija na Jadranu .

Planirani završetak radova i useljenje su planirani na ljeto 2027.g.

*KUPAC NE PLAĆA AGENCIJSKU PROVIZIJU!

Za više informacija o nekretnini kontaktirajte agenciju

Bonton-nekretnine
info@bonton-nekretnine.com
00385/95234-2080

REC ID: 1284181

Značajke

  • 81 m2
  • 80 m2
  • 1 kupaonica
  • 3 sobe
  • 1 kat
  • 500 m od mora
  • Pogled na more
  • Prvi red do mora

Agencija

Logo agencije

Bonton-nekretnine

Agent

Bozana 23 d.o.o.

Mob: +385 95 345 2080

Agencija logo
+
=
REC Kuće Biz
Dogma LUXURY ESCAPE
Bonum Real Estate Croatia
Opatia Riviera Real Estate by SmartInvest
Terra Dalmatica Real Estate
IMMO - real estate agency Split
Kaiser Immobilien Opatija
Search for you