Loading...

Okrug Gornji

Luksuzni penthouse s krovnom terasom - Okrug Gornji

360.000 €

Luksuzni penthouse s krovnom terasom - Okrug Gornji Posredujemo u prodaji stanova u luksuznoj novogradnji u Okrugu Gornjem, na odličnoj lokaciji svega 500 metara od mora.

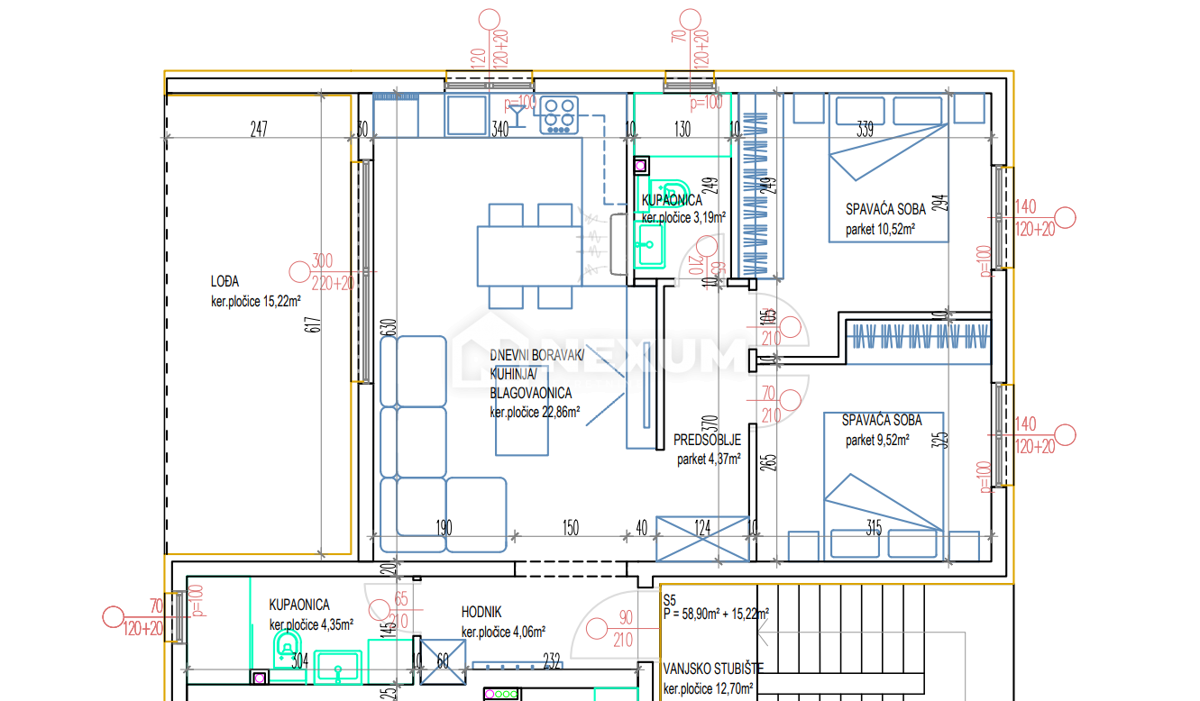
Na prodaju je ekskluzivan dvosoban penthouse S5 smješten na drugom katu moderne zgrade. Ukupna korisna površina iznosi 93,55 m², od čega unutarnji dio stana ima 58,90 m², terasa 15,22 m², dok impresivna krovna terasa iznosi čak 77,73 m².

Stan se sastoji od hodnika, dvije spavaće sobe, dvije kupaonice te prostranog dnevnog boravka povezanog s kuhinjom i blagovaonicom, što prostoru daje moderan i funkcionalan koncept otvorenog tipa. Iz dnevnog dijela izlazi se na prostranu terasu koja dodatno proširuje životni prostor i pruža ugodan boravak na otvorenom.

Posebna vrijednost ove nekretnine je velika privatna krovna terasa površine 77,73 m², koja je zamišljena kao ekskluzivna lounge zona. Na terasi su predviđene instalacije za ljetnu kuhinju i jacuzzi, što budućem vlasniku omogućuje potpuni komfor i luksuzni način života uz more. Stanari imaju na raspolaganju zajednički bazen, što dodatno doprinosi kvaliteti boravka i atraktivnosti same nekretnine.

Stan dodatno krasi i otvoren, atraktivan pogled na more, koji doprinosi osjećaju luksuza i privatnosti.

Stanu pripada i vanjsko parkirno mjesto, uključeno u cijenu.

Ova nekretnina predstavlja idealan spoj moderne arhitekture, luksuza i vrhunske lokacije, te je izvrsna prilika kako za osobno uživanje, tako i za investiciju u turistički najam.

REC ID: 1284488

Značajke

  • 93 m2
  • 2 kupaonice
  • 2 sobe
  • 2 kata
  • 500 m od mora
  • Prvi red do mora

Agencija

Logo agencije

Nexum nekretnine

Agent

Stipe Ćurak

Mob: +385 95 886 8224

Agencija logo
+
=
REC Kuće Biz
Dogma LUXURY ESCAPE
Bonum Real Estate Croatia
Opatia Riviera Real Estate by SmartInvest
Terra Dalmatica Real Estate
IMMO - real estate agency Split
Kaiser Immobilien Opatija
Search for you