Loading...

Sveti Filip I Jakov

SVETI FILIP I JAKOV, PREDIVAN STAN S VRTOM

305.000 €

SVETI FILIP I JAKOV, PREDIVAN STAN S VRTOM NOVOGRADNJA | Stan S1 u prizemlju s privatnim vrtom – idealan spoj komfora i privatnosti

U ponudi je stan S1 smješten u prizemlju moderne zgrade u izgradnji, koji se ističe prostranim privatnim vrtom i funkcionalnim rasporedom – savršen za obiteljski život, odmor ili kao investicija za najam.

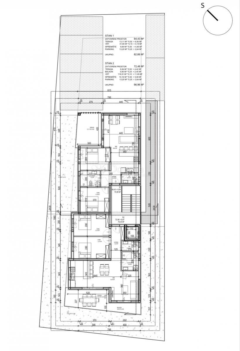
Ukupna površina iznosi 82,66 m², a sastoji se od:

64,43 m² stambenog prostora
natkrivene terase 13,11 m²
privatnog vrta 41,80 m²

Raspored prostora je izuzetno praktičan i moderan:

hodnik – 4,30 m²
open space dnevni prostor (kuhinja, blagovaonica i dnevni boravak) – 29,62 m² s izlazom na natkrivenu terasu 13,11 m² i vrt
dvije spavaće sobe – 10,82 m² i 11,66 m²
kupaonica s WC-om – 5,23 m²
dodatni zasebni WC – 2,80 m²

Posebna prednost ovog stana je privatni vrt površine 41,80 m², idealan za opuštanje, dječju igru ili stvaranje vlastite oaze na otvorenom.

Stanu pripada:

ostava u podrumu
jedno parkirno mjesto

Kvaliteta gradnje i opreme prati suvremene standarde:

sve prostorije bit će klimatizirane
u kupaonici je predviđeno podno grijanje
mogućnost nadoplate za podno grijanje u cijelom stanu
mogućnost odabira podnih i zidnih obloga prema želji kupca

Zgrada će biti opremljena liftom, a elegantno pročelje bit će obloženo travertin pločama, što dodatno naglašava kvalitetu i moderan dizajn.

Ova nekretnina nudi savršen balans između unutarnjeg komfora i vanjskog prostora – rijetkost na tržištu.

Završetak radova planiran je za proljeće 2027. godine.

Kupnja se odvija u sustavu PDV-a, što znači da kupac ne plaća porez na promet nekretninama.

Za više informacija i dogovor oko razgleda – slobodno se javite.

REC ID: 1284743

Značajke

  • 82 m2
  • 2 kupaonice
  • 3 sobe
  • 500 m od mora
  • Pogled na more

Agencija

Logo agencije

Dogma nekretnine d.o.o.

Agent

Nina Mrvica

Mob: 091/157-1280

Agencija logo
+
=
REC Kuće Biz
Dogma LUXURY ESCAPE
Bonum Real Estate Croatia
Opatia Riviera Real Estate by SmartInvest
Terra Dalmatica Real Estate
IMMO - real estate agency Split
Kaiser Immobilien Opatija
Search for you