Loading...

Brodarica

Brodarica – novogradnja drugi red od mora – stan s terasom

421.000 €

Brodarica – novogradnja drugi red od mora – stan s terasom U ponudi je moderan stan na prvom katu novogradnje smještene u drugom redu od mora, na atraktivnoj lokaciji u Brodarici kraj Šibenika. Stan je projektiran s naglaskom na funkcionalnost i ugodan boravak, uz optimalno iskorišten prostor.

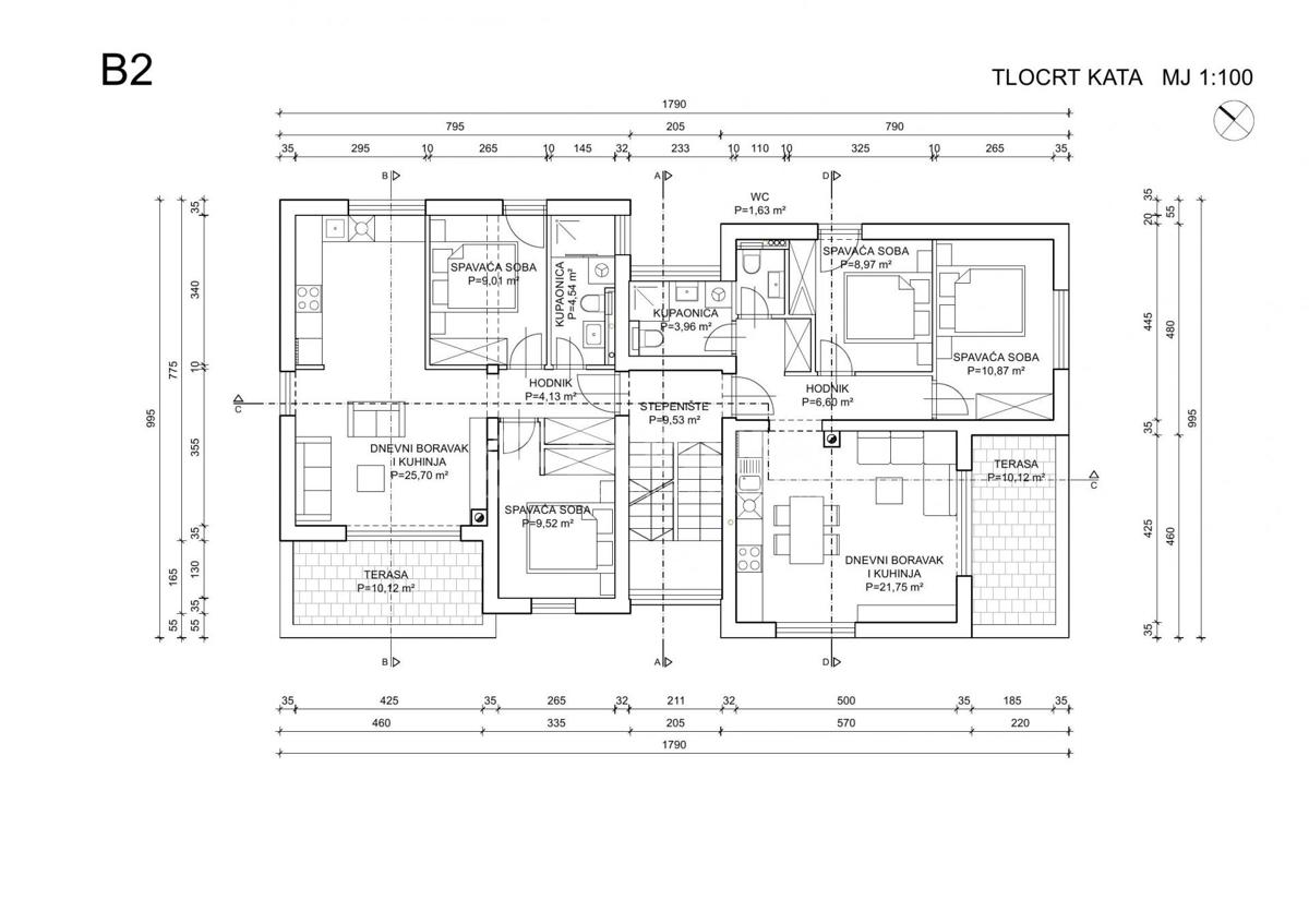
Stan se sastoji od hodnika, dvije spavaće sobe, kupaonice, dodatnog wc-a te prostranog dnevnog boravka s kuhinjom i blagovaonicom iz kojeg se izlazi na natkrivenu terasu. Raspored prostorija omogućuje jasnu podjelu dnevnog i noćnog dijela, čime se postiže dodatna udobnost stanovanja.

Dnevni boravak s kuhinjom površine oko 25,70 m² čini središnji dio stana, dok su spavaće sobe odvojene i pružaju potrebnu privatnost. Iz dnevnog dijela omogućen je izlaz na terasu površine 10,12 m² koja pruža ugodan prostor za boravak na otvorenom.

Ukupna površina stana funkcionalno je raspoređena kako bi zadovoljila potrebe suvremenog stanovanja, a katnost osigurava dodatnu privatnost i mir.

Zgrada je dio projekta dvije moderne stambene zgrade (B1 i B2), smještene jedna iza druge, pri čemu se ova zgrada nalazi u drugom redu od mora. Projekt se odlikuje suvremenom arhitekturom, kvalitetnom gradnjom i pažljivo osmišljenim rasporedom stanova. Svaka zgrada ima ukupno šest stambenih jedinica raspoređenih na prizemlje i dva kata.

Brodarica je mirno i uređeno obalno naselje smješteno svega nekoliko minuta vožnje od Šibenika. Poznata je po lijepim plažama, čistom moru i opuštenom načinu života, a u neposrednoj blizini nalaze se svi potrebni sadržaji za ugodan boravak tijekom cijele godine. Ova lokacija predstavlja odličan izbor za život, odmor ili sigurnu investiciju u turizam.

REC ID: 1285231

Značajke

  • 66 m2
  • 2 kupaonice
  • 3 sobe
  • 1 kat
  • 30 m od mora
  • Prvi red do mora

Agencija

Logo agencije

Bonum nekretnine d.o.o.

Agent

Tomislav Drežnjak

Mob: 095/7505763

Agencija logo
+
=
REC Kuće Biz
Dogma LUXURY ESCAPE
Bonum Real Estate Croatia
Opatia Riviera Real Estate by SmartInvest
Terra Dalmatica Real Estate
IMMO - real estate agency Split
Kaiser Immobilien Opatija
Search for you