Loading...

Jezera

Jezera, novogradnja, dvosobni apartman od 55,54 m²

194.390 €

Jezera, novogradnja, dvosobni apartman od 55,54 m² Jezera, mirna lokacija, novogradnja – u manjoj stambenoj zgradi s ukupno 4 stambene jedinice, na 2 etaže: prizemlje + 1. kat.
Zgrada je modernog izgleda, s podnim grijanjem u kupaonicama i dnevnom boravku, klimatizirana u svim prostorijama, s električnim podizačima roleta i visokokvalitetnom keramikom.

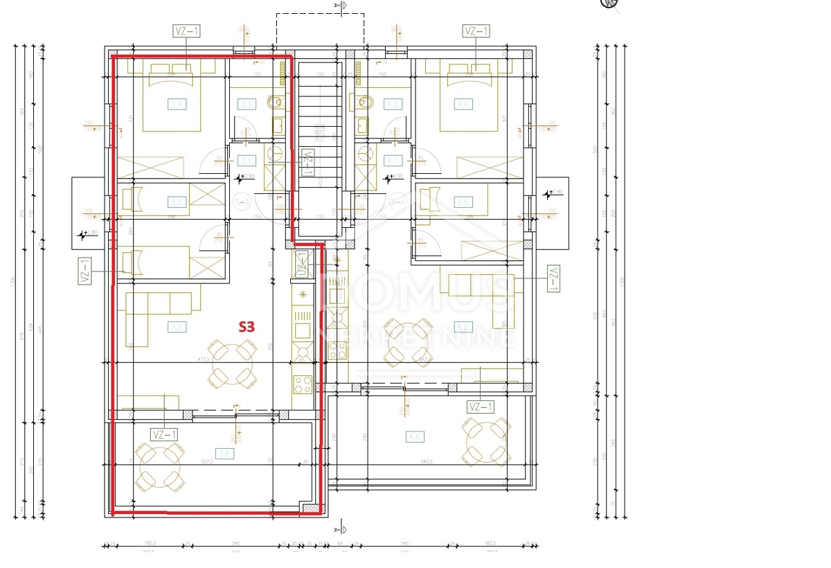
Stambena jedinica S3 je dvosobni apartman koji se nalazi na prvom katu i ima 55,54 m² korisne površine. Apartman se sastoji od hodnika, kupaonice, dvije spavaće sobe, dnevnog boravka s kuhinjom te izlazom na prostranu terasu od 12,42 m².
Apartmanu pripada jedno parkirno mjesto. Zgrada se nalazi samo 500 m od mora, kao i od centra i svih važnijih sadržaja.
Predviđeni rok useljenja je proljeće 2027. godine.

REC ID: 1285578

Značajke

  • 55 m2
  • 1 kupaonica
  • 3 sobe
  • 1 kat
  • 500 m od mora
  • Prvi red do mora

Agencija

Logo agencije

DOMUS agencija za nekretnine

Agent

Catherine Marasović

Mob: 098392954

Agencija logo
+
=
REC Kuće Biz
Dogma LUXURY ESCAPE
Bonum Real Estate Croatia
Opatia Riviera Real Estate by SmartInvest
Terra Dalmatica Real Estate
IMMO - real estate agency Split
Kaiser Immobilien Opatija
Search for you