Loading...

Brseč

OPATIJA, BRSEČ (okolica) - Građevinsko zemljište 1173 m2 s projektnom dokumentacijom i fantastičnim pogledom na more!

249.000 €

OPATIJA, BRSEČ (okolica) - Građevinsko zemljište 1173 m2 s projektnom dokumentacijom i fantastičnim pogledom na more! OPATIJA, BRSEČ (okolica) - Građevinsko zemljište 1173 m2 s projektnom dokumentacijom i fantastičnim pogledom na more

EKSKLUZIVNA LOKACIJA!
Građevinsko zemljište s panoramskim pogledom na Kvarner!
Ova građevinska čestica iznad Brseča predstavlja rijetku investicijsku priliku na jednoj od najatraktivnijih mikrolokacija.
Ukupna površina zemljišta iznosi 1173 m2.

Ključne karakteristike zemljišta.
- konfiguracijski u padu, što omogućuje pogled na more sa svake etaže
- orijentacija jugoistok - maksimalna insolacija tijekom cijele godine
- pristup s asfaltirane prometnice
- komunalna infrastruktura u neposrednoj blizini
- očišćeno od većih stabala
- spektakularan pogled na more kojeg nitko ne može zakloniti

Zračna udaljenost do mora iznosi 1700 metara. U blizini se nalaze razni restorani i ostali sadržaj. Prva trgovina je na udaljenosti od par minuta vožnje.
Lokacija koja zasigurno osigurava privatnost i tišinu, izolirana od gustog prometa, idealna za kvalitetan boravak ili investiciju u turizam visoke kategorizacije.

VELIKA PREDNOST!
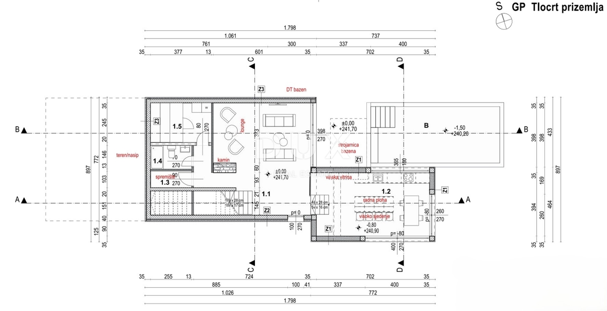
Za zemljište je izrađen glavni projekt te je građevinska dozvola u procesu izdavanja.
Po projektu, na zemljištu bi se gradila moderna vila s bazenom, projektirana prema jasnim načelima, uzimajući u obzir konfiguraciju i orijentaciju terena te potrebe modernog života u nekretnini.

Riječ je o nekretnini koja zadovoljava sve kriterije - uredna dokumentacija, izvrsna intimna mikrolokacija i arhitektonski primamljiv teren.
Za sva pitanja i uvid u kompletnu dokumentaciju, stojimo na raspolaganju.

***
Poštovani klijenti, agencijska provizija naplaćuje se u skladu s Općim uvjetima poslovanja.
www.dux-nekretnine.hr/opci-uvjeti-poslovanja

REC ID: 1285969

Značajke

  • 1173 m2
  • 1700 m od mora
  • Pogled na more

Agencija

Logo agencije

DUX Nekretnine

Agent

Tony Jerković

Mob: 051518174

Agencija logo
+
=
REC Kuće Biz
Dogma LUXURY ESCAPE
Bonum Real Estate Croatia
Opatia Riviera Real Estate by SmartInvest
Terra Dalmatica Real Estate
IMMO - real estate agency Split
Kaiser Immobilien Opatija
Search for you