Loading...

Vodice

ŠIBENIK, VODICE – 121 m² privatnog vrta, garaža, 500 m od mora

380.484 €

ŠIBENIK, VODICE – 121 m² privatnog vrta, garaža, 500 m od mora ŠIBENIK, VODICE – 121 m² privatnog vrta, garaža, 500 m od mora

Ako tražite stan koji se ljeti pretvara u kuću — ovaj ima 121 m² privatnog vrta koji postaje vaš glavni životni prostor i to na jednoj od najtraženijih lokacija u Vodicama.

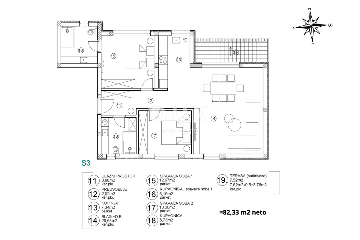
Stan S3 nalazi se na 1. katu manje stambene zgrade s ukupno 5 stanova, ima 78,57 m² stambene površine (105,69 m² obračunske površine) i dvostranu orijentaciju istok–zapad. Pri ulazu u stan ulazi se u hodnik iz kojeg se s obje strane pristupa spavaćim sobama (od kojih master soba s vlastitom en-suite kupaonicom) i dodatnoj kupaonici. U nastavku stana dolazimo do dnevnog prostora u kojem se nalaze dnevni boravak s kuhinjom i blagovaonicom na koji se nastavlja natkrivena terasa.
S terase se vanjskim stubištem spušta u privatno dvorište površine 121 m² u kojem su pripremljene instalacije za ljetnu kuhinju i tuš, te postoji i mogućnost izgradnje bazena.

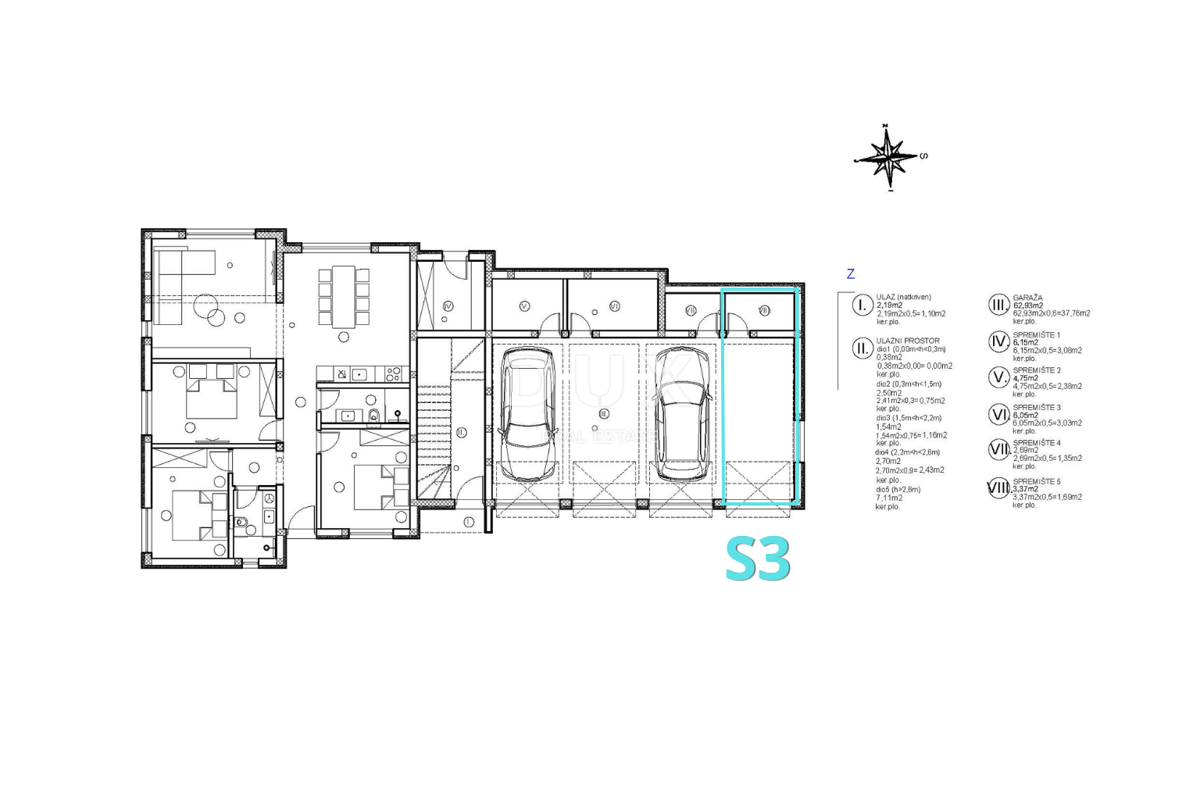
Stanu pripada garaža sa spremištem u prizemlju građevine, koja također ima vlastiti ulaz/izlaz u dvorište tako da je komunikacija među pripadajućim dijelovima stana neometana.

Ono što ovu nekretninu izdvaja na tržištu je privatno ograđeno dvorište od čak 121 m², koje može služiti kao dnevni prostor za boravak na otvorenom u toplijim mjesecima i koji ljeti postaje vaš glavni prostor za provođenje vremena:
• ljetna kuhinja
• zona za druženja
• jacuzzi ili lounge prostor
• mogućnost izgradnje bazena

Zahvaljujući površini i infrastrukturi (struja, voda, odvod), dvorište omogućuje potpunu prilagodbu — od lounge zone do ljetne kuhinje ili čak izgradnje bazena.

RASPORED
Sastoji se od:
• open space dnevnog boravka s kuhinjom i blagovaonicom
• natkrivene terase (7,5 m²)
• 2 spavaće sobe (master spavaća soba s vlastitom kupaonicom)
• 2 kupaonice (jedna en suite)
• ulaznog hodnika
• privatnog dvorišta površine 121 m²
• garažno mjesto i spremište u prizemlju građevine

Oprema i kvaliteta:
Stan je građen s fokusom na dugoročnu udobnost i energetsku učinkovitost:
• podno grijanje u dnevnom dijelu i kupaonicama – ugodan boravak tijekom cijele godine
• klima uređaji u svim prostorijama – potpuna kontrola temperature
• PVC stolarija (Gealan) s troslojnim staklom – mir, izolacija i niži troškovi
• električne rolete i komarnici – dodatni komfor
• klizne stijene – više svjetla i bolja povezanost s terasom
• priprema za ljetnu kuhinju i tuš u dvorištu (struja, voda, odvod)
• priprema za punjenje električnih vozila u garaži

LOKACIJA
Blizina mora i noviji dio Vodica stvaraju balans između opuštenog života i dostupnosti svih sadržaja. Lokacija omogućuje brzu povezanost s centrom, dok zadržava mir izvan glavnih turističkih tokova. Kupci biraju ovaj dio grada zbog kombinacije privatnosti, pogleda i dugoročne vrijednosti nekretnine.
UDALJENOSTI:
• more: 500 m
• centar: cca 1 km (15 min hoda)
• trgovina: 900 m
• škola / vrtić: 1,2 km
Mikrolokacija okružena novijim objektima dodatno osigurava ujednačen standard i uredno okruženje.

ZA KOGA JE NEKRETNINA IDEALNA
Za kupce koji žele osjećaj kuće bez obveza koje nosi njezino održavanje — za one koji traže više od stana, veću razinu privatnosti i vlastiti vanjski prostor, ali i kao investicija za turistički najam gdje upravo dvorište značajno povećava cijenu noćenja.

Stanovi s ovakvom površinom privatnog vrta, na ovoj lokaciji, u novogradnji u Vodicama izuzetno su rijetki — javite se za više informacija i razgledavanje dok je još dostupan na tržištu.

Vodice su jedno od najtraženijih turističkih odredišta na šibenskom području, poznate po plažama i razvijenoj turističkoj infrastrukturi.

Poštovani klijenti, agencijska provizija naplaćuje se u skladu s Općim uvjetima poslovanja:
www.dux-nekretnine.hr/opci-uvjeti-poslovanja

REC ID: 1285976

Značajke

  • 105 m2
  • 121 m2
  • 2 kupaonice
  • 1 garaža
  • 3 sobe
  • 1 kat
  • 500 m od mora
  • Pogled na more

Agencija

Logo agencije

DUX Nekretnine

Agent

Tony Jerković

Mob: 051518174

Agencija logo
+
=
REC Kuće Biz
Dogma LUXURY ESCAPE
Bonum Real Estate Croatia
Opatia Riviera Real Estate by SmartInvest
Terra Dalmatica Real Estate
IMMO - real estate agency Split
Kaiser Immobilien Opatija
Search for you