Loading...

Ika

OPATIJA, IKA - Dvoetažni stan u luksuznoj novogradnji blizu mora

480.000 €

OPATIJA, IKA - Dvoetažni stan u luksuznoj novogradnji blizu mora OPATIJA, IKA -Dvoetažni stan u luksuznoj novogradnji s pogledom na more

U mirnom, zelenilom okruženom dijelu iznad Ike, svega mekoliko minuta hoda do mora, u tijeku je izgradnja moderne stambene zgrade s ukupno tri ekskluzivne stambene jedinice. Zgrada je pažljivo projektirana kako bi svakom stanu pružila maksimalnu privatnost, otvoren pogled na more te funkcionalan raspored koji odgovara suvremenom načinu života.

U ponudi je prostrani dvoetažni stan koji se proteže kroz prizemlje i prvi kat, uključujući vanjske površine i dva privatna parkirna mjesta.

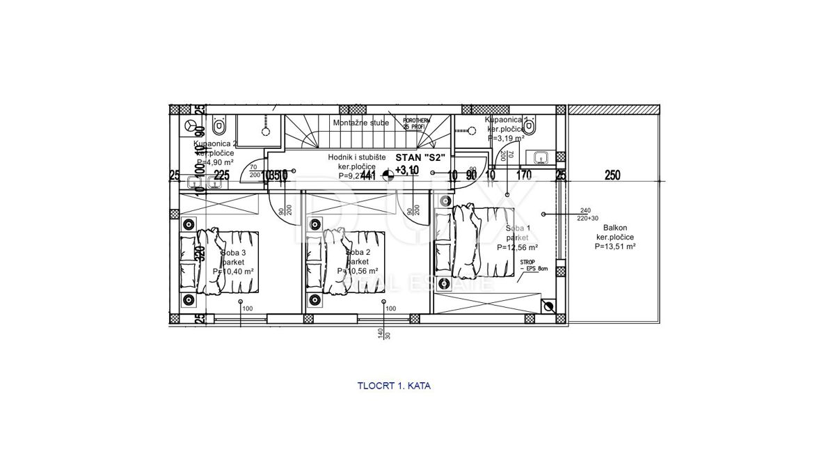
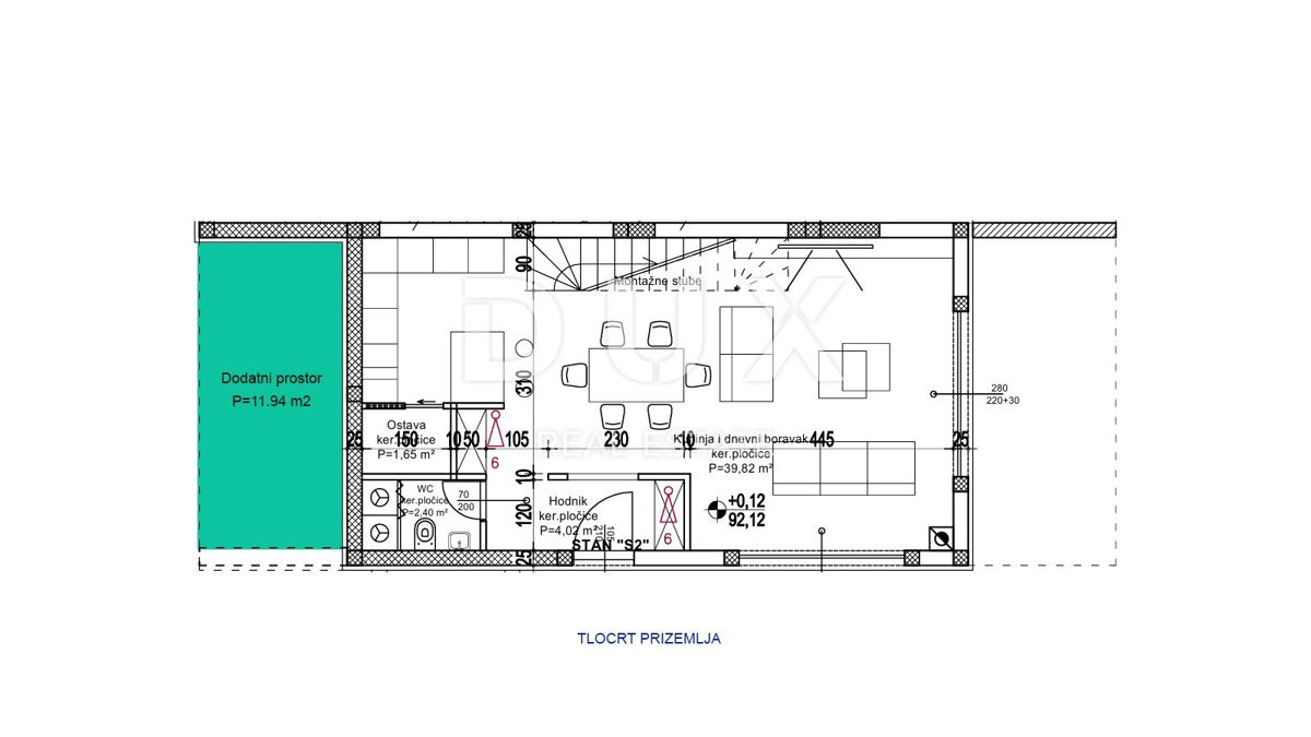
Raspored prostora:

Prizemlje: prostrana terasa, djelomično natkrivena, dnevni boravak s kuhinjom i blagovaonicom, hodnik, toalet i ostava, dodatna višefunkcionalna prostorija

Kat: tri spavaće sobe, dvije kupaonice, hodnik i natkriveni balkon s pogledom na more

Na katu je predviđen i prostor za privatnu saunu, čime se dodatno podiže razina komfora.

Velike terase na obje etaže dodatno proširuju dnevni prostor, a posebno je zanimljiva mogućnost ugradnje ljetne kuhinje i nadzemnog bazena, za što su već pripremljene sve instalacije – savršeno za one koji žele stvoriti svoju privatnu vanjsku oazu za opuštanje i druženje.

Tehnička oprema i mogućnosti prilagodbe:
Podno grijanje u cijelom stanu (osim spavaćih soba gdje je predviđen parket)

Dizalica topline i fan-coil sustav za grijanje i hlađenje

Multisplit klima uređaji u svim sobama

Kupcima u ranoj fazi gradnje omogućuje se izbor završnih materijala (keramika, parket, sanitarije) u okviru definiranog budžeta, uz mogućnost nadoplate za više klase.

Završetak radova planiran je za lipanj 2026. godine

Dodatne prednosti:
Dva privatna parkirna mjesta ispred zgrade uključena u cijenu

Izvrsna prometna povezanost: ACI marina Ičići i plaže nalaze se svega nekoliko minuta vožnje, a do centra Opatije stiže se za 10-ak minuta

Moderna novogradnja vrhunske kvalitete u mirnom okruženju s panoramskim pogledom na more – rijetkost na ovom dijelu tržišta

Ova nekretnina predstavlja savršen spoj obiteljskog doma za cjelogodišnje stanovanje, vile za odmor ili investicije u turistički najam u jednom od najtraženijih dijelova Opatijske rivijere.

Za sve dodatne informacije, tlocrte i mogućnost razgledavanja – kontaktirajte nas s povjerenjem.
Agencijska provizija se obračunava prema Općim uvjetima poslovanja:
http://www.dux-nekretnine.hr/opci-uvjeti-poslovanja

REC ID: 1286281

Značajke

  • 144 m2
  • 4 kupaonice
  • 4 sobe
  • 350 m od mora
  • Pogled na more

Agencija

Logo agencije

DUX Nekretnine

Agent

Tony Jerković

Mob: 051518174

Agencija logo
+
=
REC Kuće Biz
Dogma LUXURY ESCAPE
Bonum Real Estate Croatia
Opatia Riviera Real Estate by SmartInvest
Terra Dalmatica Real Estate
IMMO - real estate agency Split
Kaiser Immobilien Opatija
Search for you