Loading...

Poreč

ISTRA, Poreč - 600 m od plaže, četverosoban stan u novogradnji!

480.000 €

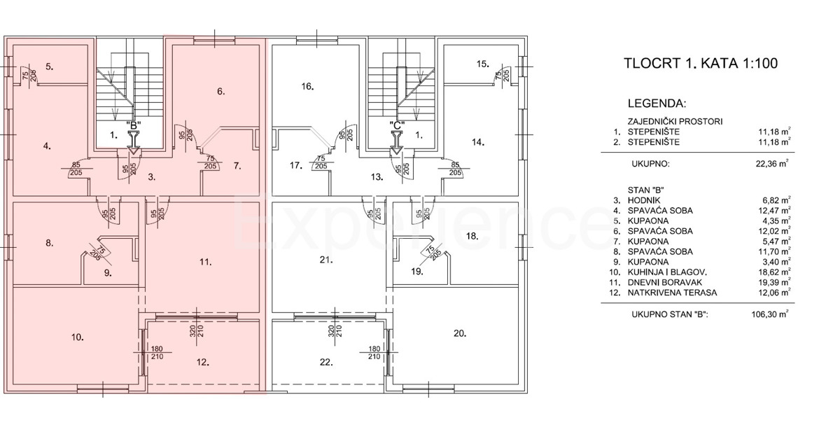
ISTRA, Poreč - 600 m od plaže, četverosoban stan u novogradnji! NA ATRAKTIVNOJ LOKACIJI, u Poreču – cca. 600 metara od plaže na prodaji je četverosoban stan, ukupne površine 103.29 m². Stan se nalazi na prvom katu novoizgrađene rezidencijalne zgrade. Stan sadrži: predsoblje, dnevni boravak, kuhinju i blagovaonicu sa izlazom na prostranu natkrivenu terasu (12.06 m²), tri spavaće sobe svaka sa vlastitom kupaonicom. Sa terase pruža se djelomice pogled na more.

Stanu također pripada spremište (6.68 m²) u prizemlju zgrade i 2 parkirna mjesta.

Grijanje i hlađenje regulirano je putem klima uređaja, te postavljeno je podno grijanje u dnevnom boravku, kuhinji i kupaonicama.

Uz napomenu, prilikom kupnje nekretnine ne plaća se porez na promet nekretnina.

REC ID: 980470

Značajke

  • 110 m2
  • 3 kupaonice
  • 3 sobe
  • 1 kat

Agencija

Logo agencije

EXPERIENCE Real Estate

Agent

Patricija Simonetti

Mob: +385 91 300 4077

Agencija logo
+
=
REC Kuće Biz
Dogma LUXURY ESCAPE
Bonum Real Estate Croatia
Opatia Riviera Real Estate by SmartInvest
Terra Dalmatica Real Estate
IMMO - real estate agency Split
Kaiser Immobilien Opatija
Search for you